**Standout Features:**
- Grade II listed stone farmhouse cottage dating back to the mid-18th century
- Two spacious reception rooms, a conservatory, and a separate home office
- Expansive mature gardens with distant countryside views
- Driveway parking for 2-3 cars and an attached garage
- Close proximity to scenic Peak District National Park
- Low crime rate in a peaceful, affluent village setting
**Potential Concerns:**
- Listed property status may complicate renovation or extension plans
- Average maintenance required due to age and potential damp in some areas
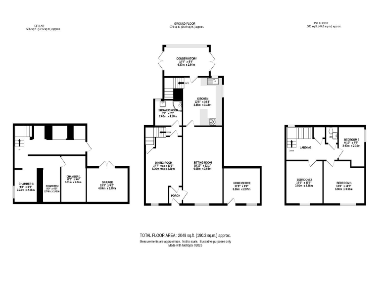
Nestled in the picturesque village of Kettleshulme, this charming Grade II listed stone farmhouse cottage combines historical allure with modern comforts, making it ideal for families or those seeking an idyllic countryside retreat. Boasting three generous bedrooms, two inviting reception rooms, and a bright conservatory, the interior space is both functional and welcoming. The stunning mature gardens provide a serene outdoor sanctuary, perfect for relaxation or entertaining, and offer expansive views over the countryside.
While the property's listed status adds a unique character, it also presents some renovation considerations. However, the current layout—including useful cellars and an attached office—offers plenty of potential for future customization. Conveniently located near essential amenities and excellent schools, this home embodies the charm of rural living with accessibility to larger towns. Discover the perfect blend of history, comfort, and tranquillity; a rare opportunity not to be missed!
3 bedroom detached house for sale in Kettleshulme, High Peak, SK23 — £585,000 • 3 bed • 1 bath • 6458 ft²
2 bedroom detached house for sale in Heald Wood Road, Woodley, Stockport, Greater Manchester, SK6 — £475,000 • 2 bed • 2 bath • 883 ft²
3 bedroom detached house for sale in Kettleshulme, High Peak, SK23 — £550,000 • 3 bed • 3 bath • 1507 ft²
2 bedroom detached house for sale in Kettleshulme, High Peak, SK23 — £350,000 • 2 bed • 1 bath • 750 ft²
5 bedroom detached house for sale in Sticking Mires Farmhouse, Bridgemont, Whaley Bridge, High Peak, SK23 — £725,000 • 5 bed • 2 bath • 2120 ft²
2 bedroom terraced house for sale in King Sterndale, Buxton, SK17 — £335,000 • 2 bed • 1 bath • 384 ft²






























































































