Large character home with garden, garage and conversion potential in Thorner.
Over 1,900 sq ft period accommodation with high ceilings and original features
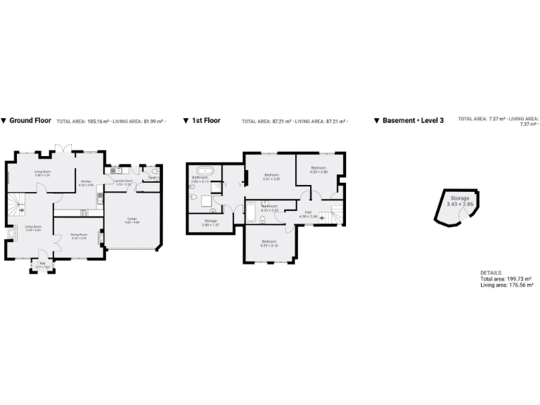
Set on the outskirts of picturesque Thorner, this substantial Victorian end-of-terrace offers more than 1,900 sq ft of period accommodation across multiple storeys. Character features include high ceilings, mouldings and sash-style windows, and the layout gives two reception rooms, two dining areas, a large kitchen, utility/WC, and a double integral garage with scope to convert for extra living space.
The first floor houses three large double bedrooms, including a generous master suite with walk-in wardrobe and ensuite (separate shower and roll-top bath). Outside, the mature private walled garden and an allotment (rented separately for a nominal sum) provide useful outdoor space and low-maintenance planting, with off-street parking for two cars on the private driveway.
This house will suit families or professionals seeking village living close to Leeds while retaining period character and generous room sizes. There is clear potential to add value by reconfiguring the garage or altering internal layouts, but buyers should factor in some trade-offs: very slow broadband speeds and assumed solid stone walls with no cavity insulation, which may affect heating efficiency and retrofit costs.
The property is freehold, in a low-crime, affluent area with good primary schooling nearby. Council Tax sits above average (Band E), and heating is by mains gas with room heaters in parts of the home. Overall, a character-rich home with strong space and conversion potential for buyers willing to invest in modernisation and energy improvements.
3 bedroom terraced house for sale in Church View, Thorner, LS14 — £365,000 • 3 bed • 2 bath • 1456 ft²
4 bedroom detached house for sale in Main Street, Thorner, Leeds, West Yorkshire, LS14 — £1,100,000 • 4 bed • 2 bath • 1606 ft²
5 bedroom detached house for sale in Sandhills, Thorner, Leeds, West Yorkshire, LS14 — £1,600,000 • 5 bed • 3 bath • 3884 ft²
3 bedroom link detached house for sale in Sedgegarth, Thorner, Leeds, West Yorkshire, LS14 — £550,000 • 3 bed • 2 bath • 1006 ft²
4 bedroom detached house for sale in Milner Lane, Thorner, Leeds, LS14 — £750,000 • 4 bed • 2 bath • 2043 ft²
3 bedroom semi-detached house for sale in Church View, Thorner, LS14 — £535,000 • 3 bed • 1 bath • 1243 ft²


















































































































































