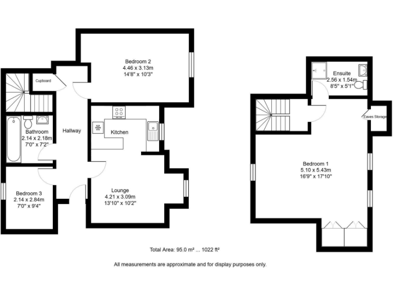
**Standout Features:**
- Spacious 3-bedroom flat with 1022ft of living space
- Master bedroom with built-in wardrobes and en-suite
- Modern kitchen with breakfast bar and integrated appliances
- Newly renovated with a new boiler (5-year warranty)
- Off-street parking and communal rear garden
- Prime location: 2-minute walk to Rayleigh Station
**Notable Concerns:**
- Leasehold with 103 years remaining
- Monthly service charge of approximately £183 (totaling £2,200 annually)
- Ground rent of £200
Discover your next home in this beautifully renovated 3-bedroom flat in the heart of Rayleigh, offered at a guide price of £270,000 - £290,000. With an expansive 1022ft of living space, it features a light-filled lounge and a modern kitchen equipped with a breakfast bar and built-in appliances, perfect for entertaining. The master suite, occupying the entire top floor, boasts deep built-in wardrobes and an en-suite shower room, creating a personal sanctuary. Additional bedrooms provide versatile options as children's rooms, guest spaces, or home offices.
Conveniently located just a 2-minute stroll from Rayleigh Station, this property ensures effortless commuting. Nearby schools—including Glebe Primary, Sweyne Park, and FitzWimarc—make it ideal for families. With low crime rates and a vibrant community feel, this property combines comfort and security. The added bonus of a communal garden and off-street parking enhances its appeal. Viewings are highly recommended to fully appreciate this unique offering; opportunities like this don't last long!
3 bedroom flat for sale in Lansdowne Drive, Rayleigh, SS6 — £280,000 • 3 bed • 2 bath • 816 ft²
1 bedroom apartment for sale in Marina Avenue, Rayleigh, Essex, SS6 — £180,000 • 1 bed • 1 bath • 419 ft²
2 bedroom flat for sale in The Trinity, Crown Hill, Rayleigh, Essex, SS6 7FR, SS6 — £260,000 • 2 bed • 1 bath • 528 ft²
1 bedroom flat for sale in Moat Rise, Rayleigh, Essex, SS6 — £210,000 • 1 bed • 1 bath • 434 ft²
2 bedroom flat for sale in Benleigh House, Down Hall Road, Rayleigh, SS6 — £200,000 • 2 bed • 1 bath • 516 ft²
2 bedroom apartment for sale in The Trinity, 50 Crown Hill, Rayleigh, Essex, SS6 7FR, SS6 — £280,000 • 2 bed • 1 bath • 550 ft²


















































