Compact open-plan apartment with parking and lift access, ideal starter home.
Long lease (approx. 980 years) provides security
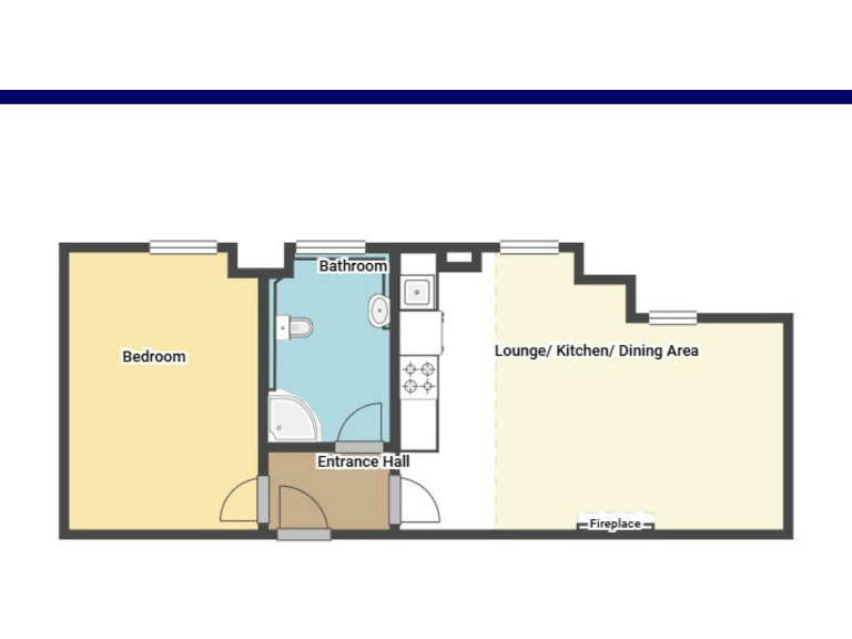
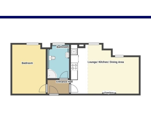
A well-proportioned one-bedroom apartment in The New Alexandra Court, offering practical open-plan living and allocated gated parking. The flat benefits from lift access, secure communal areas and a compact modern kitchen — suitable for someone seeking a manageable first home or a buy-to-let purchase.
The apartment sits close to Nottingham city centre with strong transport links and local amenities within walking distance. The long lease (circa 980 years) and low council tax band make ongoing ownership straightforward, while fast broadband and excellent mobile signal support modern working-from-home needs.
Notable running costs include an annual service charge of around £2,300 and a ground rent of £200. Heating is electric, which may affect utility bills compared with gas systems. The neighbourhood records higher crime levels and the wider area shows indicators of deprivation; prospective buyers should visit at different times to assess the location themselves.
Overall this is a compact, easy-to-manage property with clear appeal for first-time buyers or investors looking for a city-centre rental opportunity. Viewing is recommended to judge the internal space and communal environment firsthand.
1 bedroom apartment for sale in Woodborough Road, NOTTINGHAM, NG3 — £83,000 • 1 bed • 1 bath • 463 ft²
1 bedroom flat for sale in Apartment 58, The New Alexandra Court, Woodborough Road, Nottingham NG3 4LN, NG3 — £45,000 • 1 bed • 1 bath • 369 ft²
1 bedroom flat for sale in Traffic Street, NOTTINGHAM, Nottinghamshire, NG2 — £135,000 • 1 bed • 1 bath • 452 ft²
2 bedroom apartment for sale in Second Avenue, Nottingham, NG7 — £140,000 • 2 bed • 1 bath • 558 ft²
1 bedroom flat for sale in Derby Street, Nottingham, NG1 — £100,000 • 1 bed • 1 bath • 484 ft²
1 bedroom apartment for sale in The New Alexandra Court, Woodborough Road, Nottingham, Nottinghamshire, NG3 4LN, NG3 — £85,000 • 1 bed • 1 bath • 340 ft²






















































































































































