Affordable freehold home with garage and private garden for first buyers.
Three bedrooms in a compact, practical two-storey layout
Attached single garage with power, lighting, boiler in garage
Driveway provides off-street parking for one car
Low-maintenance front and private rear garden with shed/utility
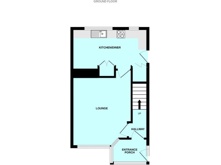
Kitchen/diner includes integrated appliances and plumbing provision
Single shower room only — may be limiting for larger families
Modest overall size (approx. 803 sq ft) — smaller living spaces
Some rooms dated and will benefit from modernisation/refurbishment
This three-bedroom semi-detached home in Plympton’s Merafield offers a compact, practical layout suited to first-time buyers seeking a manageable starter property. The lounge, kitchen/diner and three bedrooms are arranged over two floors, with an attached garage, driveway parking and low-maintenance front and rear gardens.
The current fit-out is serviceable: a fitted kitchen with integrated appliances, gas central heating and uPVC double glazing throughout. The rear garden is well kept and private, and the garage includes power, lighting and the wall-mounted boiler. Local amenities, good primary schools and pleasant neighbourhood routes such as the nearby Ridgeway are within easy reach.
Buyers should note the house is modest in size (approx. 803 sq ft) and has a single shower room — suitable for small families but potentially limiting for larger households. Some rooms show dated finishes and would benefit from cosmetic updating or refurbishment to maximise value and comfort. The garage is a standard single size and driveway parking is for one vehicle.
Overall this is a sensible, low-maintenance freehold home with clear scope to personalise and improve. It will appeal to first-time buyers or investors seeking a straightforward, affordable property in a quiet Plympton neighbourhood.
3 bedroom semi-detached house for sale in Plympton, Plymouth, PL7 — £240,000 • 3 bed • 1 bath • 838 ft²
4 bedroom detached house for sale in Plympton, Plymouth, PL7 — £425,000 • 4 bed • 2 bath • 1635 ft²
3 bedroom semi-detached house for sale in Wolrige Way, Plympton, Plymouth, PL7 2RU, PL7 — £290,000 • 3 bed • 1 bath • 763 ft²
3 bedroom semi-detached house for sale in Dengie Close, Plympton, PL7 2UR, PL7 — £230,000 • 3 bed • 1 bath • 732 ft²
3 bedroom semi-detached house for sale in Merafield Drive, Plympton, PL7 — £270,000 • 3 bed • 1 bath • 700 ft²
3 bedroom semi-detached house for sale in Dunstone View, Plymstock, PL9 8TW, PL9 — £325,000 • 3 bed • 1 bath • 669 ft²


















































































