Move-in ready with a large garden, driveway parking and strong local schools.
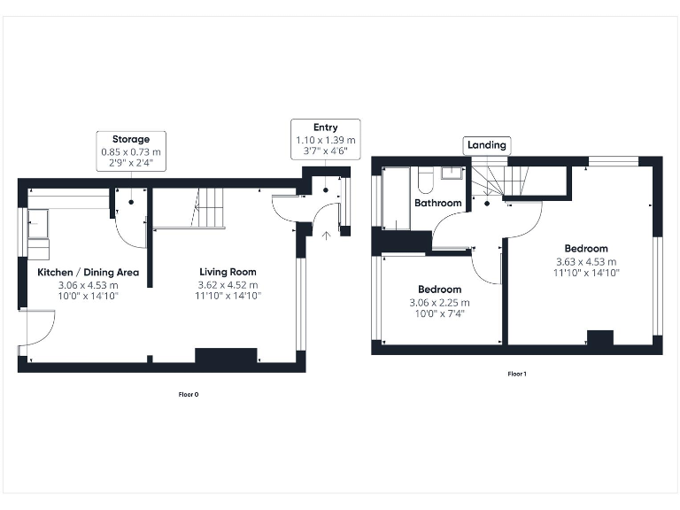
Chain-free, freehold two double-bedroom semi-detached house
This newly refurbished, chain-free two double-bedroom semi-detached house in LU2 is ready for immediate occupation. The home offers bright, well-proportioned rooms and a contemporary finish throughout, with a large rear garden that suits family use, entertaining or potential rear extension (STPP). Off-street driveway parking for two adds everyday convenience in a popular residential street.
Practical strengths include freehold tenure, vacant possession, double glazing and fast broadband, set within a low-crime neighbourhood close to good local schools and amenities. The property’s compact footprint (approx. 599 sq ft) makes it easy to maintain, appealing to first-time buyers, downsizers or investors seeking a straightforward purchase with rental potential.
Important considerations: the house is small overall and sits on a modest plot, so internal living space is limited. Heating is via electric storage heaters, which can be more costly than gas alternatives and may influence running costs. The property dates from the mid-20th century; while newly refurbished, some buyers may want to confirm age and condition of services (electrics, roof, glazing) before committing.
In short, this freehold, move-in-ready home is a practical entry into LU2’s market: low maintenance externally, strong location credentials, and scope for modest improvement if a buyer wishes to add value.
2 bedroom semi-detached house for sale in Third Avenue, Luton, Bedfordshire, LU3 — £275,000 • 2 bed • 1 bath • 679 ft²
2 bedroom semi-detached house for sale in Muswell Close, Luton, LU3 — £280,000 • 2 bed • 1 bath • 543 ft²
2 bedroom terraced house for sale in William Street, Luton, Bedfordshire, LU2 — £235,000 • 2 bed • 1 bath • 741 ft²
2 bedroom terraced house for sale in Ashton Road, Luton, LU1 — £259,995 • 2 bed • 1 bath • 675 ft²
2 bedroom terraced house for sale in Hillside Road, Luton, Bedfordshire, LU3 — £250,000 • 2 bed • 1 bath • 700 ft²
2 bedroom end of terrace house for sale in Rodeheath, Luton, LU4 — £285,000 • 2 bed • 1 bath










































