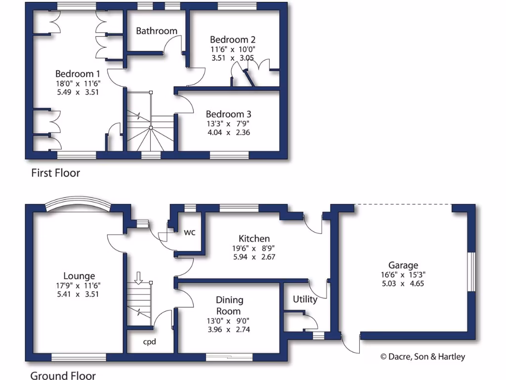
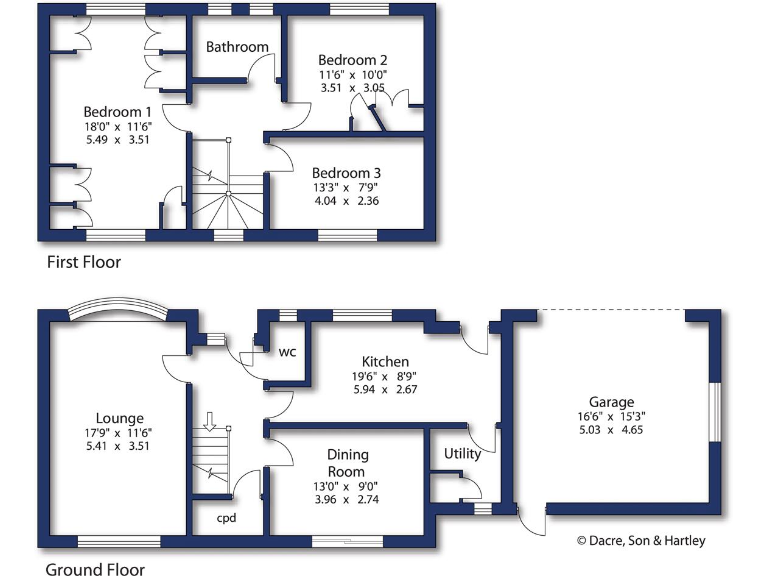
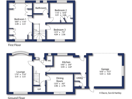
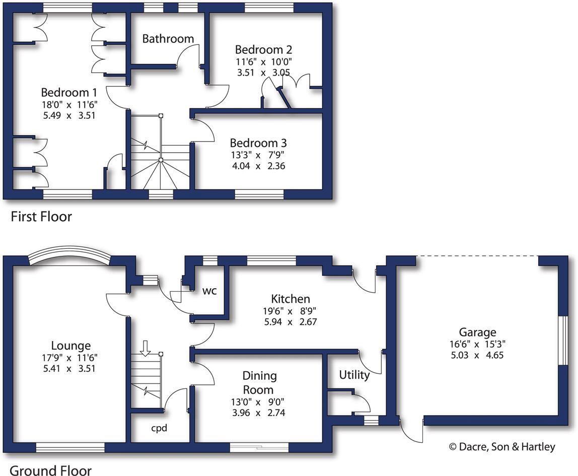
### Standout Features:
- Charming detached family home in desirable Cullingworth village
- Three spacious double bedrooms
- Two well-proportioned reception rooms
- Modern extended kitchen and utility room
- Double garage with power and electric door
- Beautiful landscaped gardens front and back
- Excellent local amenities and schools nearby
- Freehold tenure and chain-free sale
### Summary:
Discover your perfect family retreat in this delightful detached home, nestled in the picturesque village of Cullingworth. With three generous double bedrooms and two inviting reception rooms, this residence is designed for comfort and flexibility. The modern, well-equipped kitchen and adjoining utility room add practicality to everyday living, while the stunning gardens provide space for relaxation and entertaining.
Enjoy the peace of village life while benefiting from excellent local amenities and access to respected schools like Cullingworth Village Primary and Bingley Grammar. The property also features a double garage and ample driveway parking, making it both functional and convenient. With fast broadband and a friendly community environment, this home is a fantastic opportunity for families or investors alike. Don't miss out—schedule your viewing today and envision a future full of potential in this charming setting!
4 bedroom detached house for sale in Lodge Street, Cullingworth, Bradford, West Yorkshire, BD13 — £310,000 • 4 bed • 2 bath • 1290 ft²
4 bedroom semi-detached house for sale in Station Road, Cullingworth, West Yorkshire, BD13 — £360,000 • 4 bed • 2 bath • 1366 ft²
2 bedroom semi-detached house for sale in Sunningdale Crescent, Cullingworth, West Yorkshire, BD13 — £240,000 • 2 bed • 1 bath • 960 ft²
4 bedroom detached house for sale in The Brow, Cullingworth, Bradford, BD13 — £350,000 • 4 bed • 2 bath • 1307 ft²
4 bedroom detached house for sale in Hewenden Drive, Cullingworth, Bradford, West Yorkshire, BD13 — £399,950 • 4 bed • 2 bath • 1365 ft²
4 bedroom semi-detached house for sale in Carriage Fold, Cullingworth, West Yorkshire, BD13 — £285,000 • 4 bed • 2 bath • 1400 ft²


































































