Detailed consent for five conversions near Modbury — large plot with rental potential.
Detailed planning consent for five barn conversions
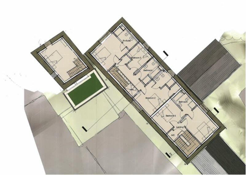
A rare development parcel in a quiet hamlet near Modbury, offered with detailed consent to convert Grade II listed stone barns into four residential units (4-bed, 3-bed, 2-bed and 1-bed holiday unit) plus a separate 5-bedroom Class Q barn with land. The site is freehold, sits on a very large plot and benefits from no flood risk, garage parking and established rural character.
Planning consent significantly de-risks delivery for an investor or developer, but the listed status will require careful, specialist compliance and may restrict some alterations. The buildings show traditional stone construction and rustic features; described roof issues and general renovation works will be needed to complete conversions to modern residential standards.
Practical drawbacks include very slow broadband, average mobile signal and likely higher build costs associated with listed refurbishment. The location suits buyers targeting countryside living, holiday-let income or a mixed residential portfolio, with nearby good primary and secondary schools and very low local crime.
This is a project for a purchaser experienced with listed conversions or prepared to engage conservation architects and specialist contractors. With granted consent and a substantial plot, the scheme offers clear scope for creating distinctive rural residences and holiday accommodation in a sought-after agricultural community.
Land for sale in Yalberton, Paignton, TQ4 — £400,000 • 1 bed • 1 bath
Commercial property for sale in Yalberton, Paignton, TQ4 — £400,000 • 1 bed • 1 bath
Barn for sale in Yalberton, Paignton, TQ4 — £400,000 • 1 bed • 1 bath
Detached house for sale in Babland Farm, Modbury, Ivybridge, Devon, PL21 — £250,000 • 1 bed • 1 bath
3 bedroom barn conversion for sale in Stadbury, Nr. Churchstow, TQ7 — £450,000 • 3 bed • 2 bath • 1861 ft²
Barn for sale in Horsebrook, Avonwick, TQ10 — £375,000 • 1 bed • 1 bath • 4395 ft²














































