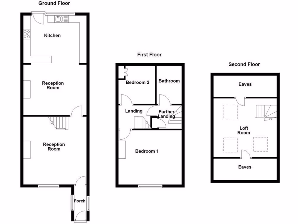
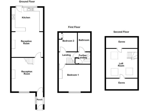
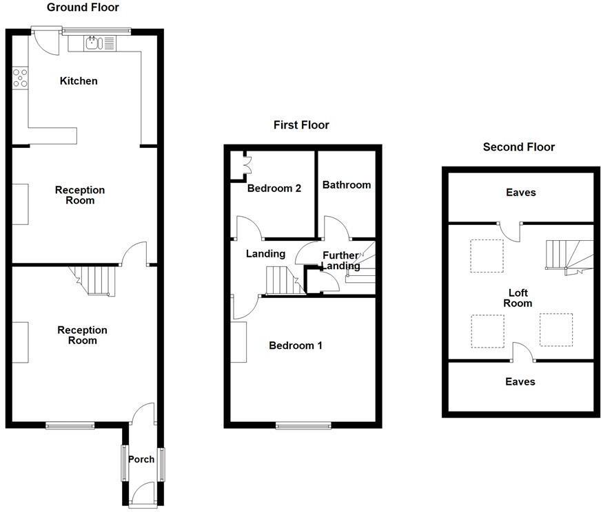
Generous three-floor Victorian cottage with loft room and village views, ripe for improvement and modernisation..
Victorian stone mid-terrace with countryside views
Spacious lounge with log burner and large windows
Large country-style kitchen-diner with integrated appliances
Loft room on second floor — flexible additional space
Enclosed rear yard; low-maintenance outdoor areas
On-street parking only; no private driveway
Glazing installed before 2002; some windows may need upgrade
Broadband speeds slow; energy improvements possible (walls uninsulated)
Set on a quiet village street in Belthorn, this Victorian mid-terrace combines generous room sizes with countryside views and a useful loft conversion. The property spans three floors: two comfortable reception rooms, a large kitchen-diner, two first-floor bedrooms and a sizeable loft room that works well as a home office or guest bedroom.
Practical features include mains gas central heating, double glazing and an EPC rating of C. The kitchen is functional with integrated appliances and a range cooker, while the living room’s log burner and spacious proportions retain period character. The enclosed rear yard and small front area provide low-maintenance outdoor space with gated rear access.
Notable limitations are factual: the house dates from before 1900 (stone walls likely uninsulated), the glazing was fitted before 2002, broadband speeds are slow and parking is on-street only. The interior shows signs of age in places and the property offers clear potential for updating or sympathetic renovation to increase energy efficiency and modern comfort.
This home will suit families or buyers seeking extra space and village life within reach of Blackburn amenities and good local schools. It presents a ready-to-live-in option with scope to add value through targeted improvements to insulation, windows and interior finishes.
3 bedroom cottage for sale in Prospect Terrace, Belthorn, Blackburn, BB1 — £170,000 • 3 bed • 1 bath • 711 ft²
3 bedroom cottage for sale in Holden Street, Belthorn, Blackburn, Lancashire, BB1 — £230,000 • 3 bed • 1 bath • 915 ft²
3 bedroom cottage for sale in Sutcliffe Terrace, Belthorn, BB1 — £180,000 • 3 bed • 1 bath • 1340 ft²
3 bedroom terraced house for sale in High Street, Belmont, BL7 — £270,000 • 3 bed • 1 bath • 1594 ft²
2 bedroom terraced house for sale in Hyndburn Bridge, Clayton Le Moors, BB5 — £145,000 • 2 bed • 1 bath • 808 ft²
2 bedroom cottage for sale in Belthorn Road, Belthorn, BB1 — £180,000 • 2 bed • 1 bath • 1368 ft²






































































































