Secure parking and 24-hour concierge in a commuter-friendly location.
City centre location with excellent transport links
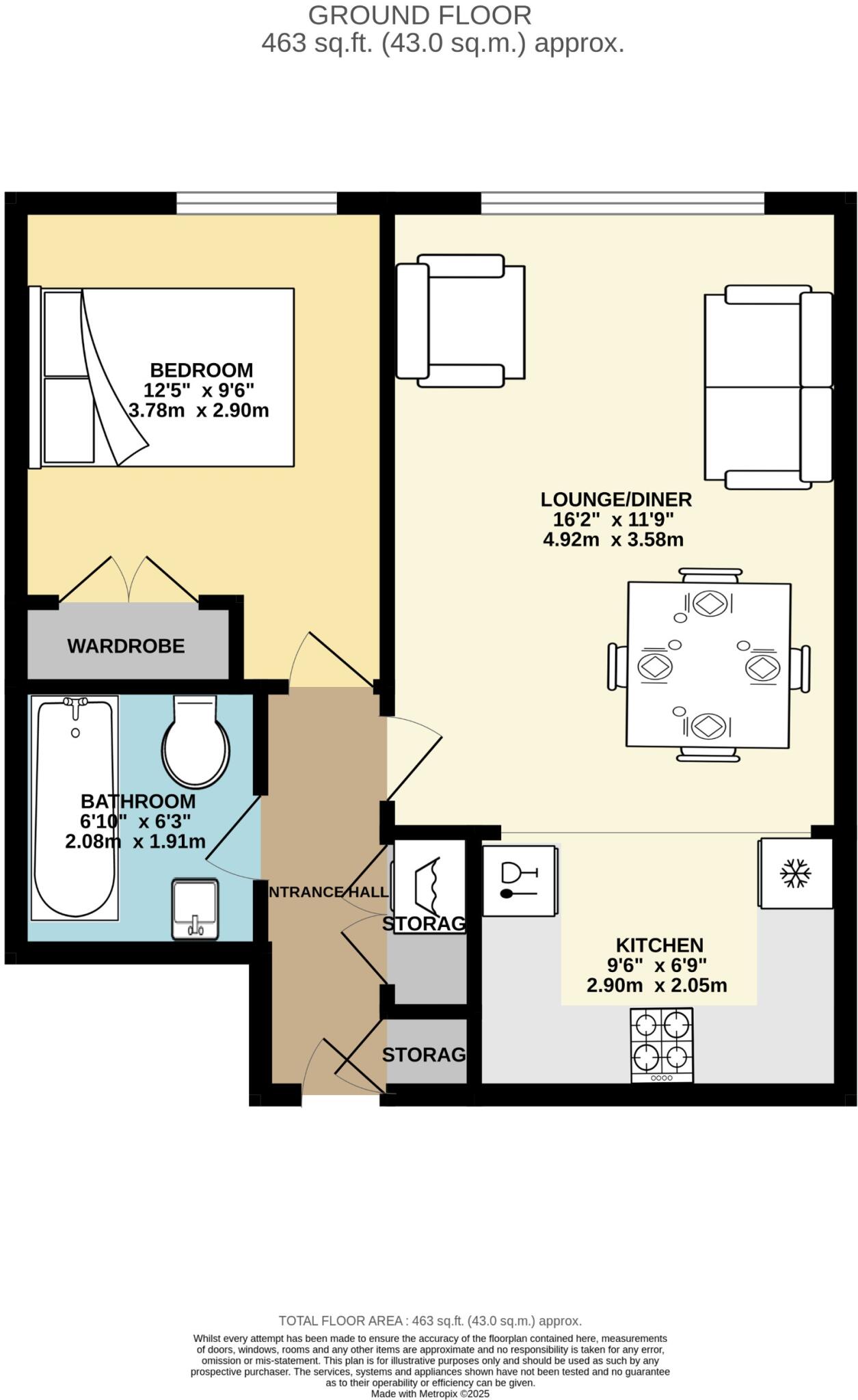
A well-presented one-bedroom apartment in Meridian Plaza, positioned in central Cardiff for strong rental demand and commuter convenience. The open-plan living area, integrated kitchen and built-in bedroom wardrobes make this a low-maintenance lock-up-and-leave home or rental unit. The development offers practical advantages: 24-hour concierge, secure entry, lifts and an allocated off-street parking space.
Financially this is straightforward: a very long lease (approx. 999 years), modest annual ground rent (£100) and a service charge of around £2,078 per year. The flat measures about 463 sq ft and has an EPC rating of C, supporting lettability to professionals or students given the central location and transport links to Cardiff and beyond.
Buyers should note material local factors: the area is classified as very deprived with a very high crime rate, which may affect future resale value or tenant mix. Service charges are significant and additional leasehold costs (e.g., lease packs) may apply. Overall, the property suits investors or city-centre buyers seeking a ready-made rental or a compact one-bedroom home with good amenities and strong transport connections.
1 bedroom apartment for sale in Bute Terrace, Cardiff, CF10 — £140,000 • 1 bed • 1 bath • 453 ft²
1 bedroom apartment for sale in Bute Terrace, Cardiff, CF10 — £155,000 • 1 bed • 1 bath • 506 ft²
1 bedroom flat for sale in Bute Terrace, Cardiff, CF10 — £125,000 • 1 bed • 1 bath • 539 ft²
1 bedroom apartment for sale in Altolusso, Bute Terrace, Cardiff City Centre, Cardiff, CF10 — £134,950 • 1 bed • 1 bath • 551 ft²
1 bedroom apartment for sale in Bute Terrace, Cardiff, CF10 — £135,000 • 1 bed • 1 bath • 517 ft²
1 bedroom flat for sale in Landmark Place, Cardiff, CF10 — £130,000 • 1 bed • 1 bath • 560 ft²


























