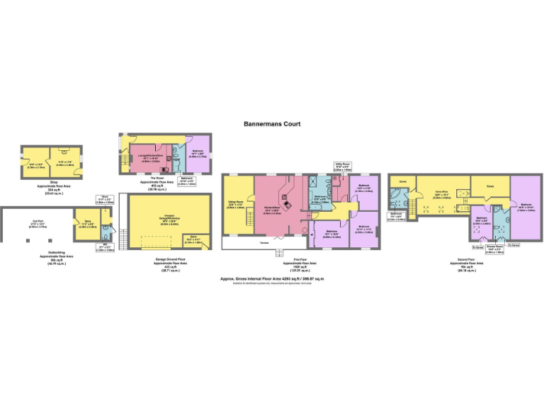
**Standout Features:**
- Spacious 5-bedroom duplex apartment (approx. 1900 sqft) and additional 1-bedroom self-contained unit
- Commercial opportunities with a supermarket let to One Stop (Tesco) and separate shop unit
- Extensive outdoor spaces, including two south-facing terraces and secure courtyard
- Ample parking with a stone-built triple carport and integral garage
- Well-appointed kitchen with high-end integrated appliances
- Potential for multi-generational living or investment income (circa £39,000 annually)
This remarkable property in the sought-after village of Hathersage offers a unique blend of residential and investment potential. The expansive five-bedroom duplex apartment captivates with its large, open-plan living area featuring a bespoke kitchen, complemented by three double bedrooms, a utility room, and luxurious bathrooms spread across two floors. With stunning views and access to sun-drenched terraces, evenings can be spent entertaining or simply enjoying the serene surroundings of the Peak District.
Beyond the main residence, this listing includes a valuable supermarket currently let to One Stop (Tesco) and an additional shop space—perfect for generating a steady stream of income or accommodating a variety of uses. The self-contained apartment, "The Roost," offers further flexibility for extended family or as a rental unit. Although the property is in great condition, potential buyers should explore future renovation options to fully optimize the space.
Conveniently located near superb local amenities, including schools, shops, and transport links, this property represents a prime opportunity for families, investors, or those seeking a peaceful refuge in a vibrant community. Given its size, appeal, and potential income, this exceptional offering is sure to attract significant interest—act quickly to make it yours!
Shop for sale in Station Road, Hathersage, Hope Valley, S32 — £1,200,000 • 6 bed • 4 bath • 4293 ft²
3 bedroom apartment for sale in Main Road, Hathersage, Hope Valley, S32 — £330,000 • 3 bed • 1 bath • 911 ft²
4 bedroom link detached house for sale in Derwent Lane, Hathersage, Hope Valley, S32 — £595,000 • 4 bed • 2 bath • 1997 ft²
5 bedroom detached house for sale in Old Hall Gardens, Stoney Middleton, Hope Valley, S32 — £850,000 • 5 bed • 3 bath • 3549 ft²
4 bedroom cottage for sale in Millbridge House & Cottage, Hope Valley, S33 — £600,000 • 4 bed • 2 bath • 1817 ft²
2 bedroom apartment for sale in The Bank, Stoney Middleton, Hope Valley, S32 — £240,000 • 2 bed • 1 bath • 1044 ft²


































































































































