Spacious garden, multiple parking spaces and ready-to-move-in condition.
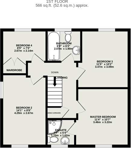
Four bedrooms with master en-suite shower room
This modern four-bedroom detached home on the outskirts of Taunton offers practical family living in a sought-after Staplegrove location. The ground floor has a generous sitting room with a front bay window and an open-plan kitchen/diner that flows onto a wide patio — ideal for year-round family entertaining. The contemporary kitchen includes fitted white goods and a separate utility and WC for everyday convenience.
Upstairs there are three good-size double bedrooms, a single bedroom currently used as an office, a modern family bathroom and a master shower room. The property benefits from a large block-paved driveway with space for multiple cars and a low-maintenance rear garden with patio, gravel, decking and a storage shed.
Practical points to note: the original garage has been repurposed as a large gym/room, so garaging is limited; overall floor area is relatively small for a four-bedroom house (circa 616 sq ft); and the property sits in a council tax band above average. The house is freehold and chain-free, with mains gas central heating, double glazing and fast broadband — well suited to families wanting a move-in ready home close to schools, shops and transport links.
4 bedroom detached house for sale in Staplegrove, Taunton, TA2 — £475,000 • 4 bed • 2 bath • 1130 ft²
4 bedroom detached house for sale in Staplegrove, TA2 — £400,000 • 4 bed • 2 bath • 1404 ft²
4 bedroom detached house for sale in Peile Drive - North Taunton, TA2 — £475,000 • 4 bed • 2 bath • 917 ft²
5 bedroom detached house for sale in Staplegrove, Taunton, TA2 — £450,000 • 5 bed • 2 bath • 1623 ft²
4 bedroom link detached house for sale in Dowell Close, TAUNTON, TA2 — £450,000 • 4 bed • 2 bath • 1615 ft²
4 bedroom detached house for sale in Dowell Close, Taunton, Somerset, TA2 — £550,000 • 4 bed • 2 bath • 2551 ft²










































































