**Standout Features:**
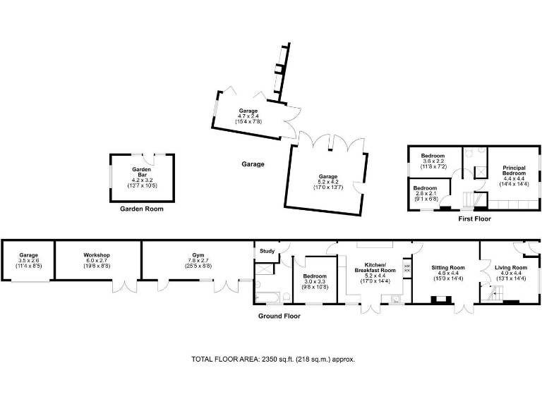
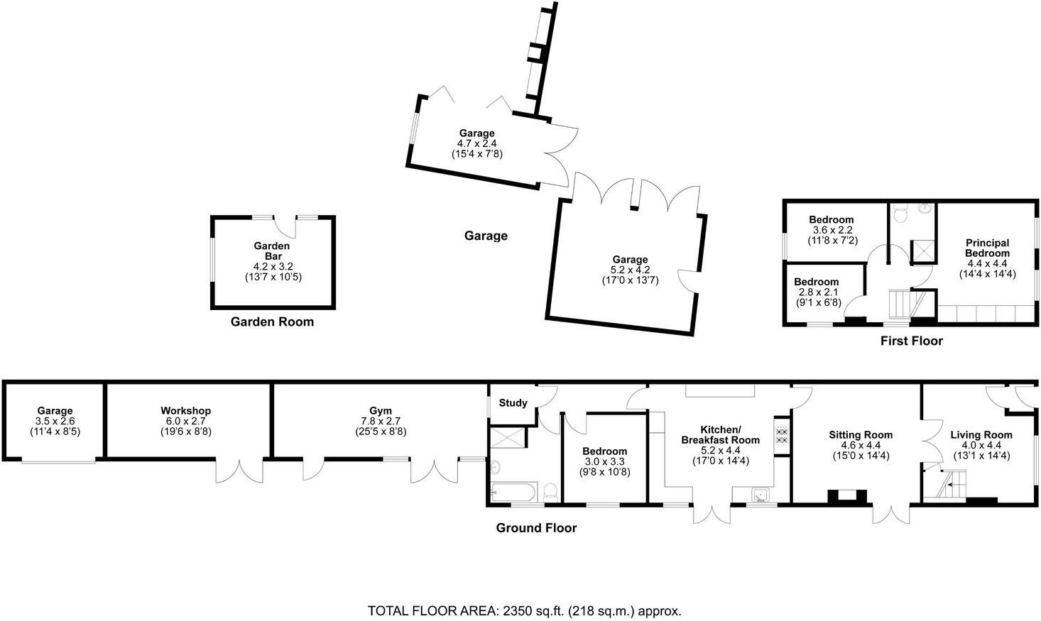
- Traditional four-bedroom, two-bathroom semi-detached home
- Ground floor bedroom and bathroom ideal for annex space
- Bespoke country-style kitchen with high ceilings and modern finishes
- Multiple outbuildings including a gym, workshop, and garden bar
- Expansive garden with unique garden kitchen, perfect for entertaining
- Far-reaching views over open countryside
- Ample parking with double and single garage options
- Excellent road and rail links, local amenities, and top-rated schools nearby
- Recent updates include a new roof, keeping the property in excellent condition
This beautifully presented semi-detached home, steeped in charm and history, is a rare find set in a tranquil, semi-rural location. Encompassing four bedrooms and two bathrooms, the residence has been thoughtfully modernized to balance its traditional character with contemporary living. The heart of the home is a bespoke country-style kitchen that flows invitingly to spacious living areas, including a cozy sitting room with a feature brick fireplace and access to a private garden.
With numerous outbuildings—perfectly suited for a gym, workshop, or entertaining friends at the garden bar—there’s flexibility for hobbies and leisure activities. The expansive garden features a garden kitchen, offering an idyllic space for family gatherings or quiet nights outdoors under the stars.
This property is not only a home but a lifestyle, positioned within reach of Brentwood town centre and key amenities, coupled with excellent transport links to London. While the character and condition of the property are excellent, it's important to note that the construction dates back over a century ago, thus potential buyers should be aware of the maintenance considerations that accompany older homes. However, the spaciousness, location, and versatility make this property a fantastic investment for families looking for comfort, exclusivity, and room to grow. Act quickly—homes of this caliber rarely last long on the market!
4 bedroom end of terrace house for sale in Mores Lane, Pilgrims Hatch, CM14 — £950,000 • 4 bed • 3 bath • 1539 ft²
5 bedroom detached house for sale in Warley Hill, Brentwood, CM14 — £750,000 • 5 bed • 3 bath • 1856 ft²
4 bedroom detached house for sale in Little Warley Hall Lane, Little Warley, CM13 — £1,225,000 • 4 bed • 2 bath • 2955 ft²
3 bedroom detached house for sale in Horseman Side, Brentwood, Essex, CM14 — £750,000 • 3 bed • 1 bath • 1679 ft²
4 bedroom link detached house for sale in Common Road, Ingrave, CM13 — £685,000 • 4 bed • 2 bath • 1337 ft²
3 bedroom semi-detached house for sale in Firsgrove Crescent, Warley, CM14 — £700,000 • 3 bed • 2 bath • 1550 ft²


























































































































































































































































