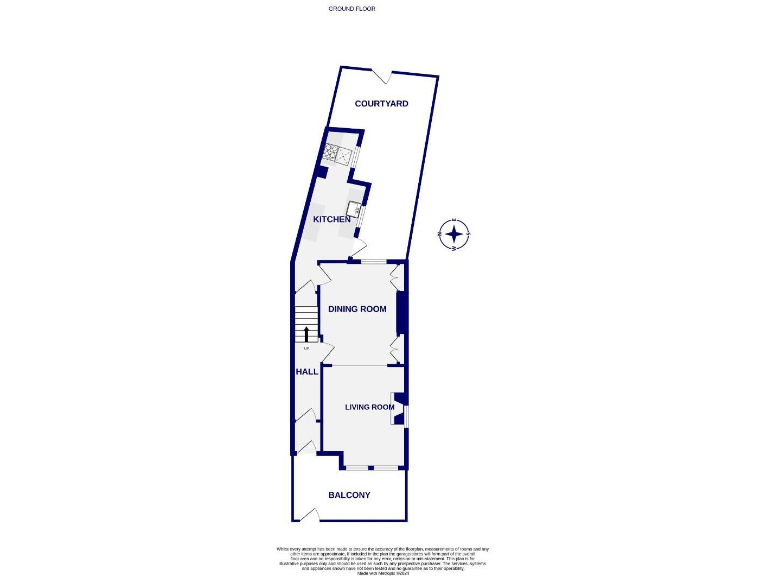
**Standout Features:**
- Charming period mid-terraced house in sought-after South Bank
- Three spacious double bedrooms, including an impressive loft room
- Expansive open-plan reception room filled with natural light
- Modern fitted kitchen with underfloor heating and ample storage
- Low-maintenance courtyard and convenient on-street parking
- No onward chain, offering immediate availability
**Summary:**
Discover a beautifully presented and extended Victorian terraced house in the desirable South Bank area of York. With three generously sized double bedrooms and a striking loft room boasting Velux windows, the home is ideal for families or those looking for workspace options. Enjoy the bright, open-plan reception area that seamlessly merges living and dining, perfect for modern lifestyles. The functional kitchen features ample storage and underfloor heating, creating a warm, inviting space. The low-maintenance courtyard at the rear provides outdoor access without the fuss, while the convenient on-street parking makes daily life hassle-free.
Situated within walking distance to the picturesque York Knavesmire as well as local amenities on Bishopthorpe Road, this property promises comfort and community. Although the main structure is solid brick with assumed no insulation, the charm of the period detailing blends beautifully with updates, setting the stage for future enhancements. Ideal for first-time buyers or families seeking a cozy yet spacious environment near quality schools and local attractions, don't miss the opportunity to secure this inviting home—schedule a viewing today!
2 bedroom terraced house for sale in Queen Victoria Street, York, YO23 — £255,000 • 2 bed • 1 bath • 648 ft²
2 bedroom end of terrace house for sale in Kensington Street, York, North Yorkshire, YO23 — £315,000 • 2 bed • 1 bath • 956 ft²
3 bedroom terraced house for sale in Argyle Street, York, YO23 — £270,000 • 3 bed • 1 bath • 760 ft²
3 bedroom terraced house for sale in Westwood Terrace, York, YO23 — £400,000 • 3 bed • 2 bath • 1024 ft²
3 bedroom terraced house for sale in Balmoral Terrace, South Bank, York, YO23 — £315,000 • 3 bed • 1 bath • 725 ft²
2 bedroom end of terrace house for sale in Montague Street, York, YO23 — £260,000 • 2 bed • 1 bath • 684 ft²






































































