Immediate yield with tenants in situ and scope to add value.
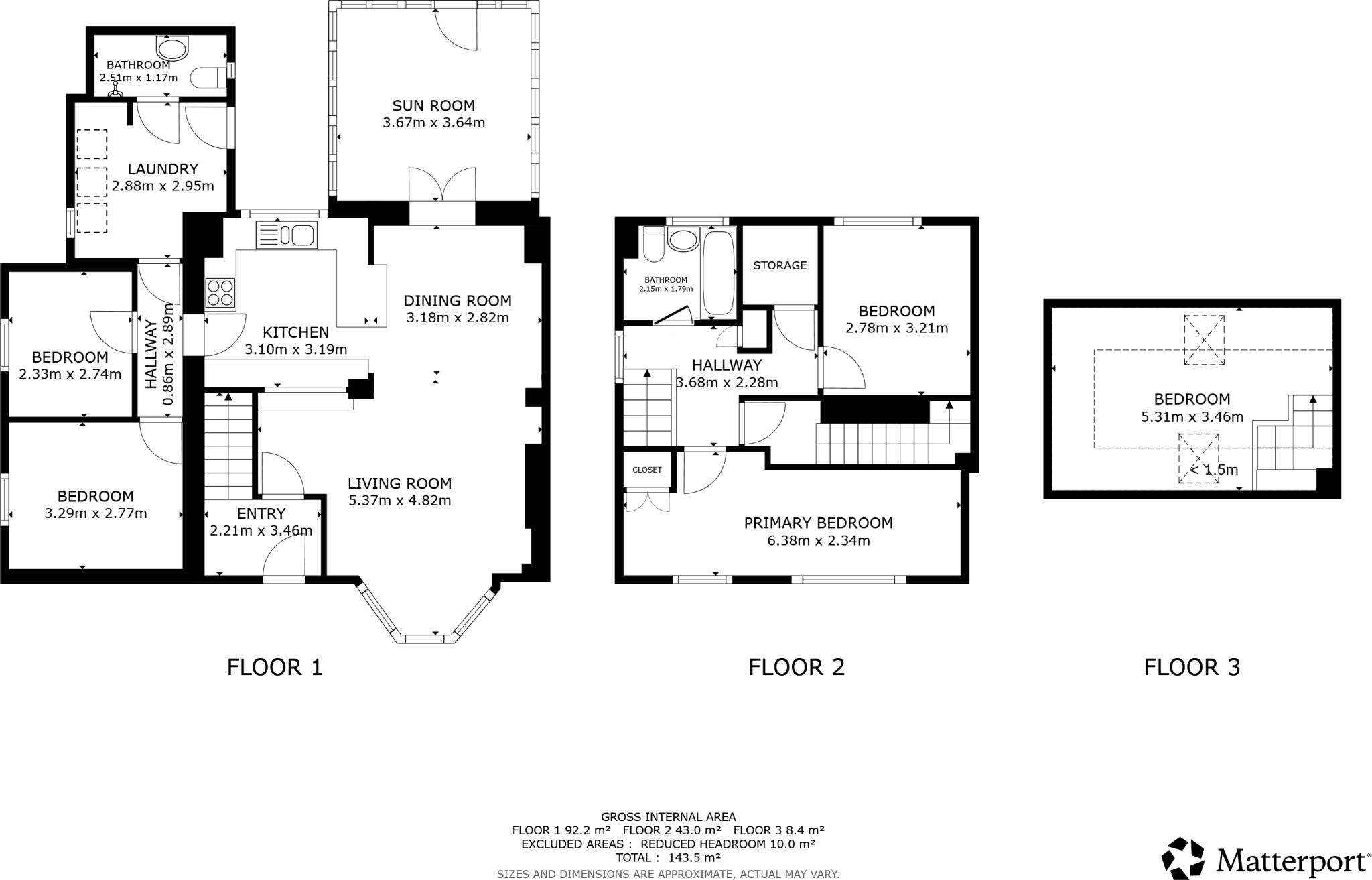
Five-bedroom HMO producing £21,600 gross per year
A five-bedroom semi-detached property in Failsworth currently operated as a licensed HMO and sold freehold. The house offers immediate rental income with a long-term tenant profile producing a reported gross annual income of £21,600, making it suitable for buy-to-let portfolios or developers seeking an income-generating asset. The layout includes a lounge, kitchen, and multiple bathrooms, plus private front and rear garden space and on-street parking.
The property sits in a densely populated urban suburb with good local amenities and fast broadband — factors that support strong rental demand. The building is mid-20th century in style with some contemporary interior finishes reported; however, the advertising material provides limited visual detail, so exact condition, room sizes and services should be verified by survey prior to purchase.
Buyers should note material considerations: the area records high deprivation scores and the property is in a hard-pressed neighbourhood, which may influence long-term capital growth and tenant mix. A buyer’s premium is stated as part of the sale process. This is a pragmatic opportunity for investors seeking immediate yield who are able to manage or refurbish a multi-occupancy asset to sustain or improve returns.
5 bedroom house of multiple occupation for sale in Douglas Street, Manchester, Greater Manchester, M7 — £326,340 • 5 bed • 2 bath • 947 ft²
5 bedroom property for sale in Hulton St- HMO + LAND -9.12% Yield, Failsworth, Manchester, M35 — £440,000 • 5 bed • 1 bath • 1260 ft²
6 bedroom terraced house for sale in Kershaw Road, Manchester, Greater Manchester, M35 — £350,000 • 6 bed • 6 bath • 830 ft²
5 bedroom house of multiple occupation for sale in Park Street, Manchester, M27 — £400,000 • 5 bed • 5 bath • 1097 ft²
6 bedroom terraced house for sale in Ashford Road, Manchester, M20 — £430,000 • 6 bed • 2 bath • 961 ft²
5 bedroom terraced house for sale in Waterway Terrace, Ridgefield Street, Failsworth, M35 0HJ, M35 — £335,000 • 5 bed • 2 bath






























































































































