MK10 9HE - 4 bed spacious family detached in Babington Close, MK10 9HE

View on Property Piper

4 bedroom detached house for sale in Babington Close, Middleton, Milton Keynes, MK10

Summary - 24 BABINGTON CLOSE MIDDLETON MILTON KEYNES MK10 9HE

4 bed 2 bath Detached

Large garden and double garage close to top-rated schools for family life.
Chain free detached four-bedroom family home
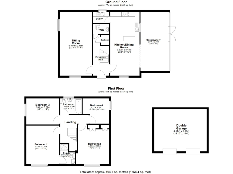
Large rear extension creating open-plan kitchen/diner
Double garage plus off-street parking for two vehicles
En suite to master bedroom; family bathroom upstairs
Excellent school catchment; walkable to primary and secondary schools
Freehold on a large plot; very low local crime rate
Average internal size ~1,768 sq ft; built c.1996–2002
Council tax band above average
This detached four-bedroom home on Babington Close offers practical family living within a sought-after Middleton catchment. A large rear extension creates an open-plan kitchen/diner and extra living space, ideal for everyday family use and informal entertaining. The property is chain free and set on a generous plot with off-street parking and a double garage.

Bedrooms are arranged over two storeys with an en suite to the master and a family bathroom serving the other rooms. The house is double-glazed and gas‑heated via a boiler and radiators. Nearby schools rated Good and Outstanding make this a straightforward choice for buyers prioritising education and a family-focused neighbourhood.

Expect a comfortable, modern house of average internal size (approximately 1,768 sq ft) with good external space. Practical considerations: the council tax band is above average, and the layout suits buyers who want a ready-to-live-in family home rather than a major renovation project. Freehold tenure and low local crime add to long-term appeal.

Property Details

Image Descriptions

Floorplan Description

Rooms

Textual Property Features

Target Audience

AI Tags

Detected Visual Features

EPC Details

Nearby Schools

Nearest Bars And Restaurants

,,,,}

Nearest General Shops

,,}

Nearest Grocery shops

,,}

Nearest Supermarkets

,,}

Nearest Religious buildings

,,}

Nearest Medical buildings

,,,}

Nearest Airports

}

Nearest Leisure Facilities

,,,,}

Nearest Tourist attractions

,,}

Nearest Train stations

,,,,}

Nearest Bus stations and stops

,,,,}

Nearest Hotels

,,}

Tags

Local Market Stats

AirBnB Data

Similar Properties

Meta

High Res Images

Compatible Images

Low res Images

Thumbnails

Raw Images

High Res Floorplan Images

Compatible Floorplan Images

Low res Floorplan Images

FloorplanImages Thumbnail

Raw Floorplan Images