Flexible three-floor home with modern living hub and private garden close to schools.
Guide price £600,000–£625,000
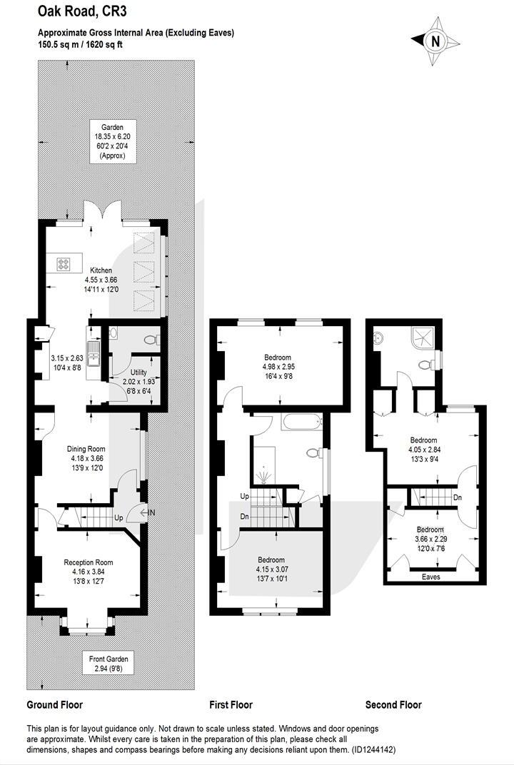
Four bedrooms including top-floor master with en‑suite
Three reception rooms plus open-plan kitchen/living
Separate utility room and driveway parking
Decent rear garden with patio for entertaining
Presented in very good, modernised condition throughout
Solid brick walls; insulation status unclear—survey recommended
Freehold; no flood risk, moderate council tax
This well-presented four-bedroom semi-detached house on Oak Road delivers flexible family living across three floors. The ground floor offers three reception rooms and a modern open-plan kitchen/living space with skylights and patio doors that connect directly to a decent rear garden and patio—ideal for indoor-outdoor family life and entertaining. A separate utility keeps household tasks out of sight.
Accommodation includes two double bedrooms on the first floor, a family bathroom, and a top-floor master suite with an en‑suite shower, giving parents a private retreat. Driveway parking and a manageable front garden add everyday convenience in a central Caterham location. The property is freehold and presented in excellent condition throughout with contemporary finishes and integrated appliances.
Location strengths are practical: short walks to local shops and Tesco, quick access to Caterham and Upper Warlingham stations for London commuting, and several highly regarded schools nearby. There is no flood risk and broadband and mobile signals are good—useful for home working and family connectivity.
Notable considerations: the house dates from the early 20th century and has solid brick walls where insulation is not recorded, so buyers should consider potential cavity/solid wall insulation work and an independent survey. Council tax is moderate and the neighbourhood records average crime. Overall, the home suits growing families seeking generous, modernised space with scope for targeted upgrades to improve energy efficiency and future value.
3 bedroom semi-detached house for sale in Auckland Road, Caterham, CR3 — £550,000 • 3 bed • 1 bath • 1125 ft²
3 bedroom semi-detached house for sale in Banstead Road, Caterham, CR3 — £425,000 • 3 bed • 2 bath • 1029 ft²
4 bedroom semi-detached house for sale in Coulsdon Road, Caterham, CR3 — £549,500 • 4 bed • 2 bath • 1296 ft²
4 bedroom detached house for sale in Willow Mews, Caterham, CR3 — £750,000 • 4 bed • 3 bath • 1475 ft²
3 bedroom semi-detached house for sale in Hawthorne Gardens, Caterham, CR3 — £525,000 • 3 bed • 2 bath • 946 ft²
4 bedroom detached house for sale in Banstead Road, Caterham, Surrey, CR3 — £800,000 • 4 bed • 2 bath • 2356 ft²






























































