KT16 8RT - 4 bedroom detached house for sale in Laleham Reach, Chertse…

View on Property Piper

4 bedroom detached house for sale in Laleham Reach, Chertsey, KT16

Summary - CLARINA LALEHAM REACH CHERTSEY KT16 8RT

4 bed 3 bath Detached

**Standout Features:**
- Spacious 4-bedroom, 3-bathroom detached house
- Modern build with extensive glazing
- Beautifully landscaped gardens with 90ft mooring
- Large outdoor deck area, perfect for entertaining
- Freehold tenure, offering long-term ownership security
- Quiet residential location with pleasant views of The Thames

**Summary:**
Experience riverside living at its finest with this stunning modern 4-bedroom detached house located in the highly sought-after Laleham Reach. Spanning an impressive 2,897 sq. ft., this home offers a perfect blend of luxury and comfort, featuring contemporary design elements that create a bright and inviting atmosphere. The expansive gardens are a true highlight, complete with a 90ft mooring, ideal for those who appreciate water activities or serene views.

Inside, the home boasts spacious rooms, including three modern bathrooms, making it perfect for family gatherings and entertaining guests. The unique wooden staircase and stylish decor add a touch of rustic charm to the modern built environment.

Situated in a family-friendly neighborhood with access to highly-rated primary and secondary schools, this property is perfect for families looking to settle down in a tranquil yet accessible location. While the council tax is on the higher side and crime in the area averages, the benefits of this unique riverside property far outweigh any concerns. Don’t miss the chance to own this exclusive piece of waterfront real estate!

Property Details

Brochure Descriptions

Image Descriptions

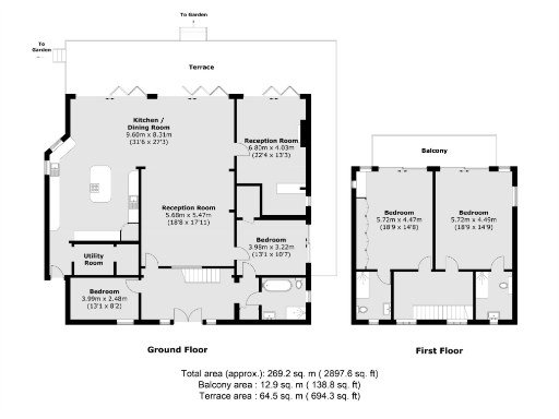
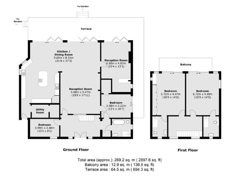
Floorplan Description

Rooms

Textual Property Features

Detected Visual Features

EPC Details

Nearby Schools

Nearest Bars And Restaurants

,,,,}

Nearest General Shops

,,}

Nearest Grocery shops

,,}

Nearest Supermarkets

,,}

Nearest Religious buildings

,,}

Nearest Medical buildings

,,,}

Nearest Airports

,}

Nearest Leisure Facilities

,,,,}

Nearest Tourist attractions

,,}

Nearest Train stations

,,,,}

Nearest Bus stations and stops

,,,,}

Nearest Hotels

,,}

Tags

Local Market Stats

AirBnB Data

Similar Properties

Meta

High Res Images

Compatible Images

Low res Images

Thumbnails

Raw Images

High Res Floorplan Images

Compatible Floorplan Images

Low res Floorplan Images

FloorplanImages Thumbnail

Raw Floorplan Images