BL2 4BT - 3 bedroom semidetached house for sale in Reddish Close, Bra…

View on Property Piper

3 bedroom semi-detached house for sale in Reddish Close, Bradshaw, BL2

Summary - 6 Reddish Close BL2 4BT

3 bed 1 bath Semi-Detached

**Standout Features:**
- Extended family home in a quiet cul-de-sac
- Open plan U-shape kitchen/dining/family area
- Fantastic rear garden with landscaped outdoor space
- Fitted wardrobes in the master bedroom
- Freehold property with no chain

**Potential Downsides:**
- Requires some modernization
- Average mobile signal

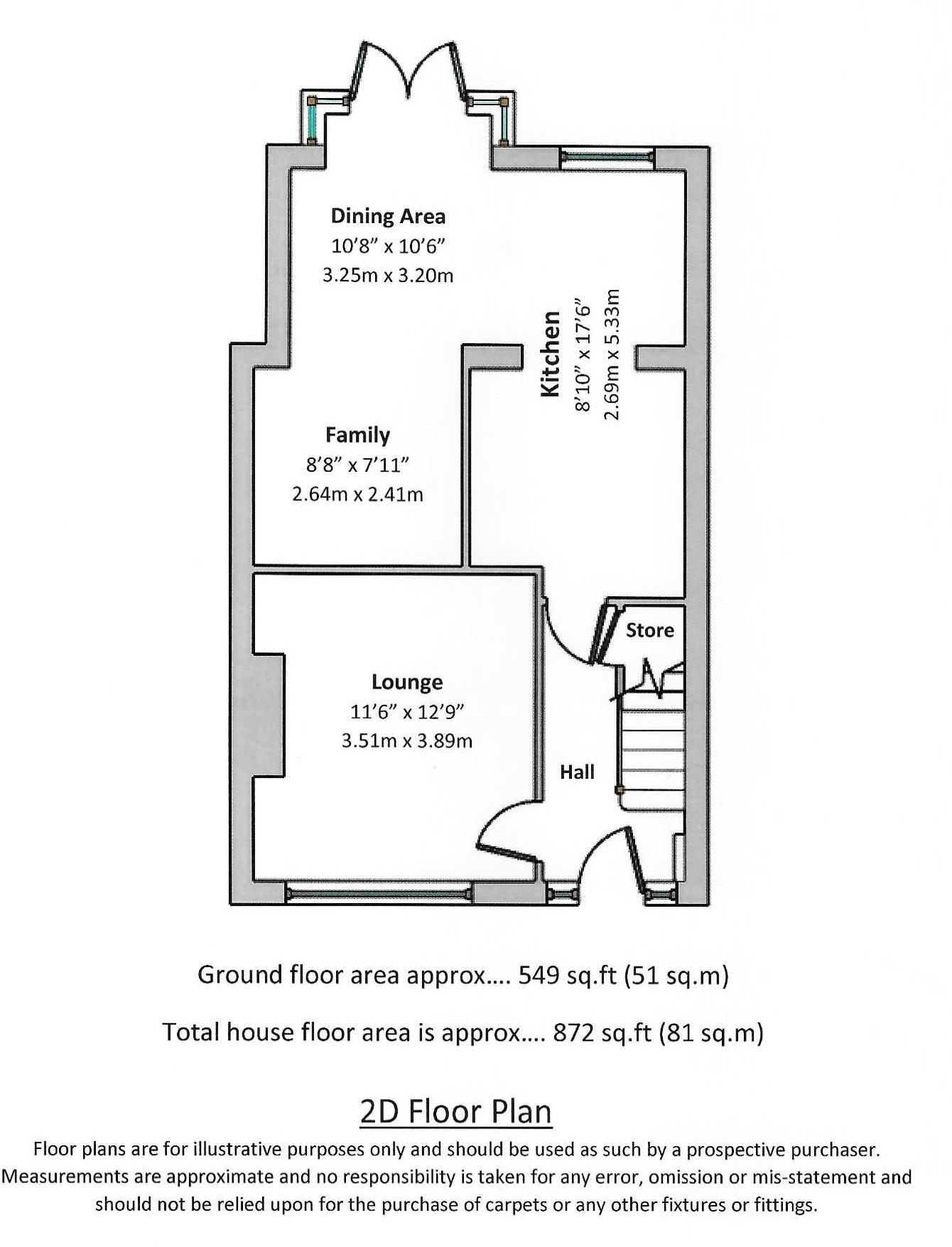
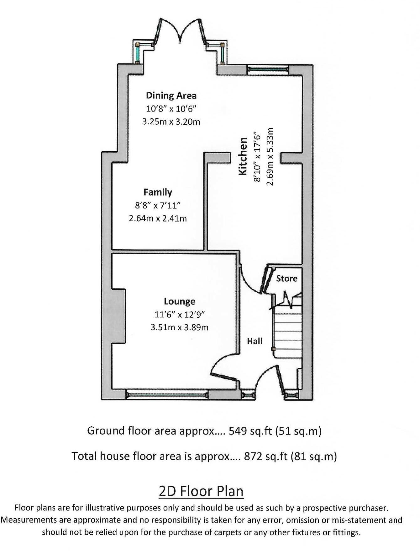
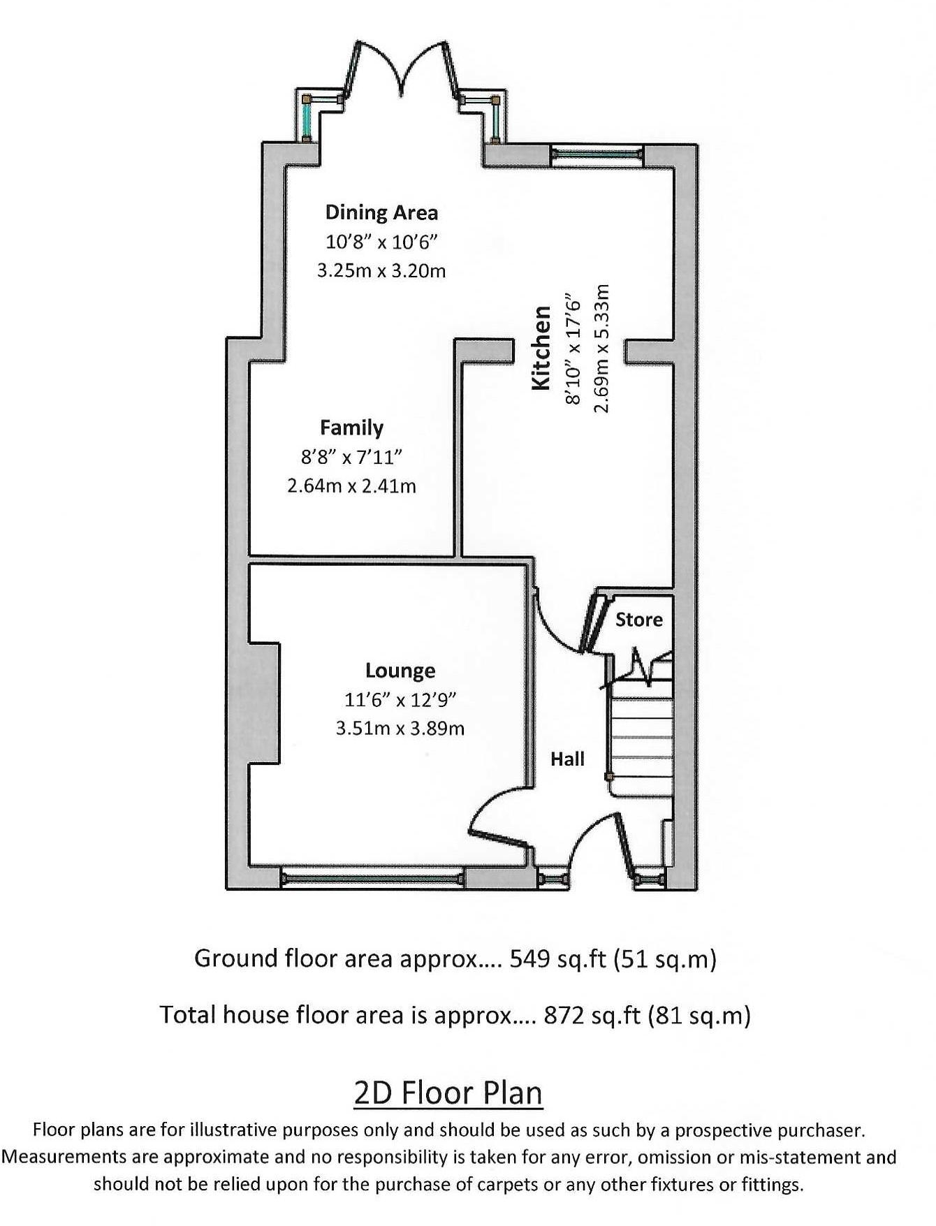
This extended family home presents a unique opportunity for families seeking a comfortable living environment in a tranquil cul-de-sac location. Boasting an open plan U-shape kitchen, dining, and family area, this layout is perfect for entertaining and everyday living. The fantastic rear garden offers a serene sanctuary adorned with landscaping, perfect for outdoor enjoyment and relaxation.

Inside, the home features three well-proportioned bedrooms, including a master with convenient fitted wardrobes, and a modern shower room, all set within an overall average size of 872 square feet. Although the property is in need of some modernization, its current condition allows for customization to fit your family's preferences.

Beneficially located near well-regarded schools and local amenities such as a bus service, inn, and pub, this home is ideal for families and investors alike. Plus, with fast broadband speeds and freehold tenure, the possibilities are endless. Don’t miss this chance to transform a lovely space into your dream family home!

Property Details

Brochure Descriptions

Image Descriptions

Floorplan Description

Rooms

Textual Property Features

Detected Visual Features

EPC Details

Nearby Schools

Nearest Bars And Restaurants

,,,,}

Nearest General Shops

,,}

Nearest Grocery shops

,,}

Nearest Supermarkets

,,}

Nearest Religious buildings

,,}

Nearest Medical buildings

,,,}

Nearest Airports

}

Nearest Leisure Facilities

,,,,}

Nearest Tourist attractions

,,}

Nearest Train stations

,,,,}

Nearest Bus stations and stops

,,,,}

Nearest Hotels

,,}

Tags

Local Market Stats

Similar Properties

Meta

High Res Images

Compatible Images

Low res Images

Thumbnails

Raw Images

High Res Floorplan Images

Compatible Floorplan Images

Low res Floorplan Images

FloorplanImages Thumbnail

Raw Floorplan Images