Bright, two‑level family home with patio and gated parking near Acton Town.
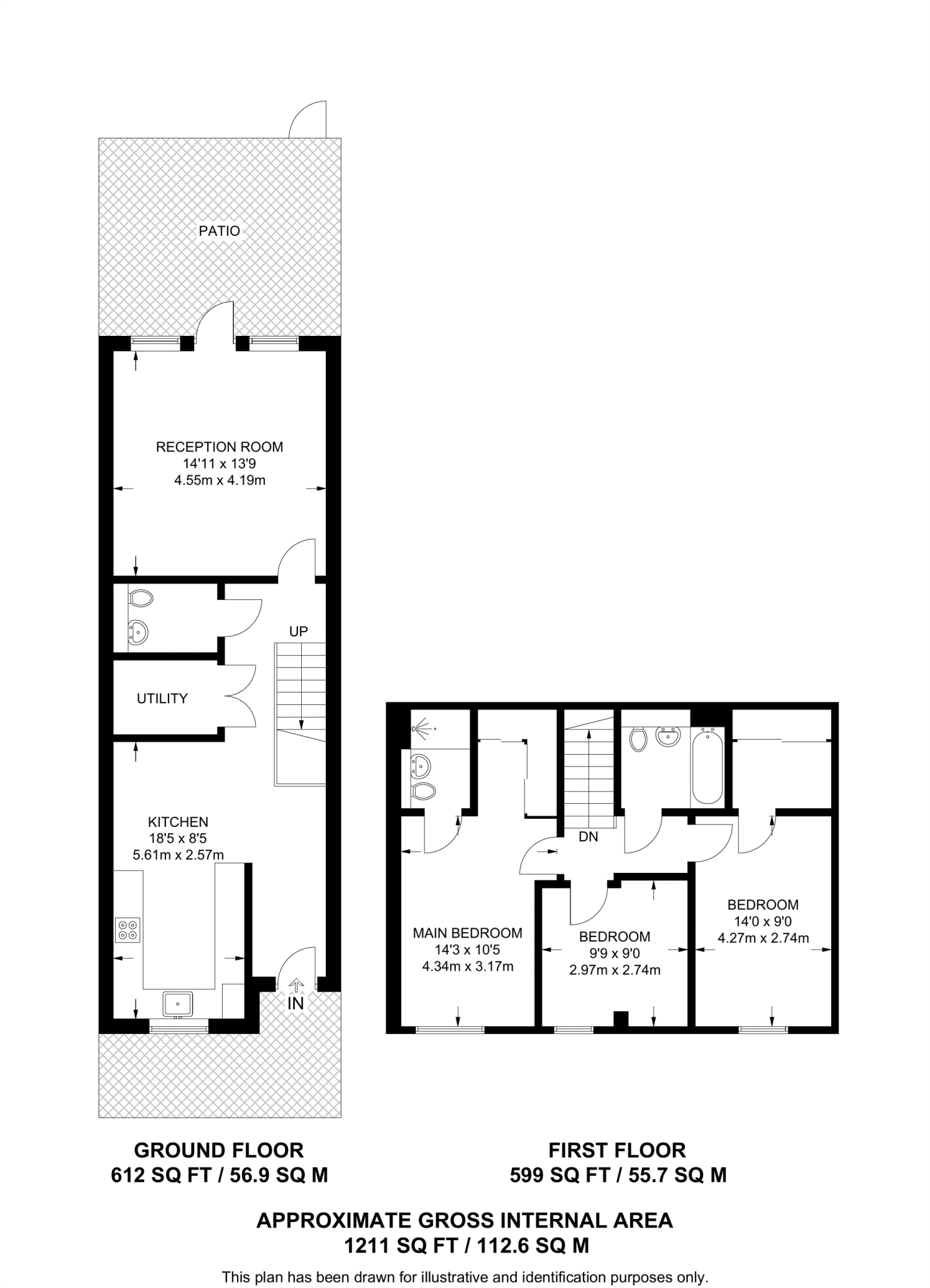
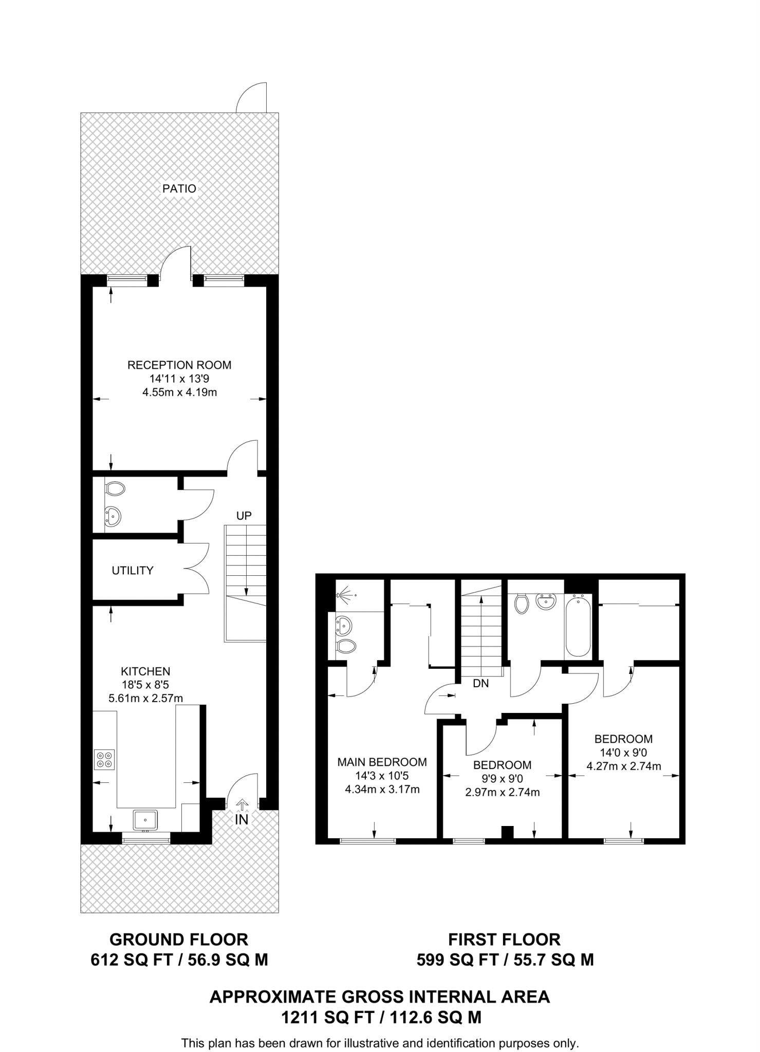
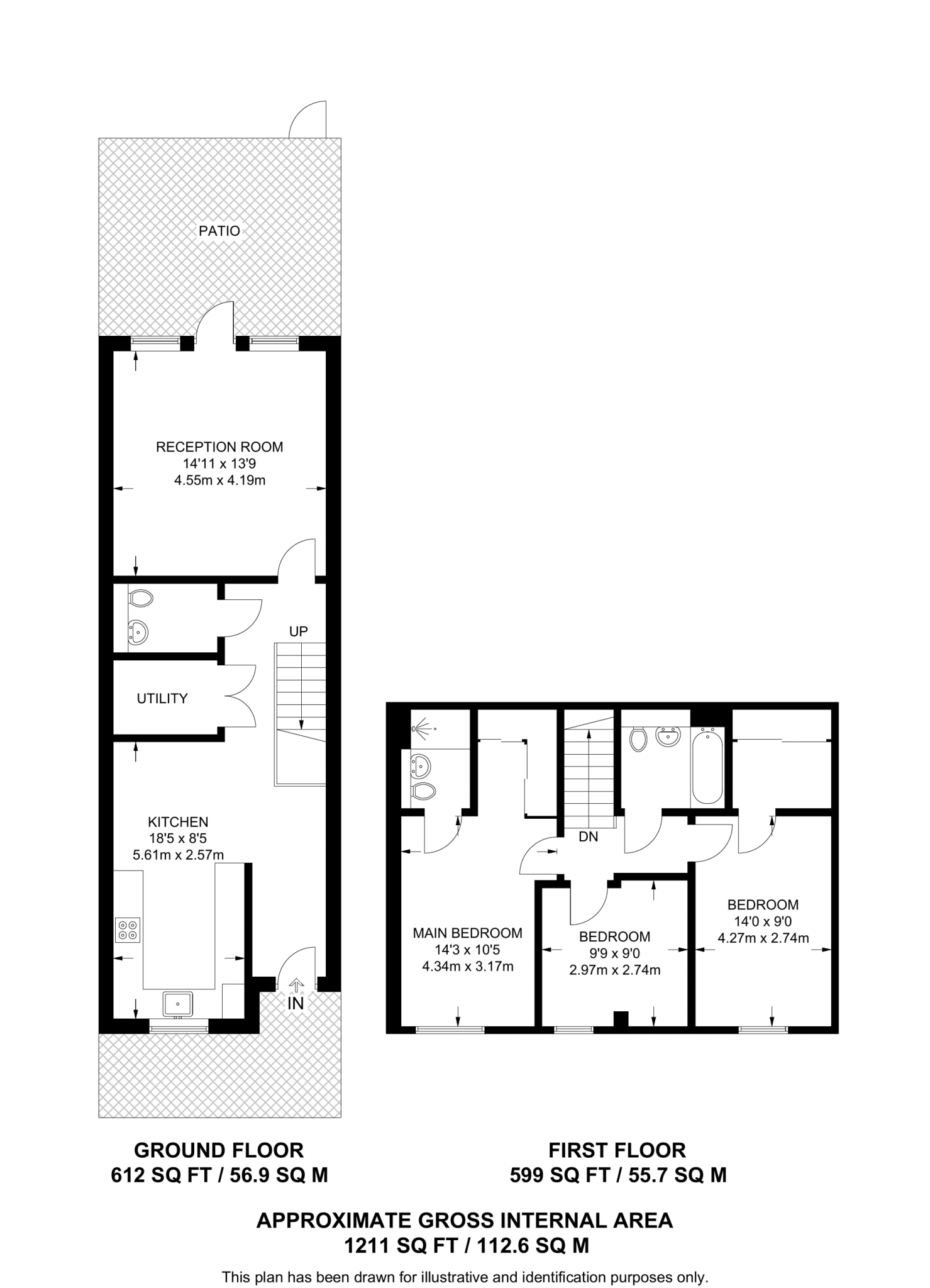
Private entrance with two-floor layout and 1,211 sq ft internal space
Main bedroom with ensuite; second bedroom has walk-in wardrobe
Stylish open-plan kitchen/diner leading to a private rear patio
Gated parking included — rare for the area
Long lease remaining (240 years) — secure tenure
Service charge approx £2,004/year and ground rent £350/year
Heating via community scheme — confirm ongoing costs and management
Area has high crime rates and significant deprivation — consider locality risks
Light-filled three-bedroom maisonette arranged over two floors, ideal for families seeking space and practical transport links. The main bedroom includes an ensuite and the second bedroom a walk-in wardrobe, while the stylish open-plan kitchen/diner provides a comfortable social hub leading to a private rear patio. Gated parking adds convenience in a busy urban location.
The property sits on a long lease (240 years) and offers 1,211 sq ft of accommodation, with bright living rooms and contemporary finishes throughout. Service charge and ground rent are notable running costs: approximately £2,004 per year and £350 per year respectively. Heating is supplied via a community scheme; buyers should confirm costs and arrangements.
Location is a clear strength: short walk to Acton Town (Piccadilly line) and easy access to Chiswick’s shops, bars and restaurants. Local schools include outstanding and good-rated options nearby. Be aware the wider area faces high crime and significant deprivation indicators; prospective buyers should consider local safety and community factors.
Overall this maisonette suits buyers seeking space and convenience in W3 with immediate occupancy potential. It offers good move-in condition and scope for cosmetic updating to personalise. Investors should factor service charges, ground rent and the urban area profile into yield calculations.
2 bedroom maisonette for sale in Petersfield Road, Acton, W3 — £575,000 • 2 bed • 2 bath • 813 ft²
2 bedroom flat for sale in Reynolds Road, Chiswick, W4 — £410,000 • 2 bed • 1 bath • 753 ft²
2 bedroom flat for sale in Acton Lane, Acton, W3 — £565,000 • 2 bed • 2 bath • 900 ft²
3 bedroom flat for sale in Davis Road, Acton, W3 — £625,000 • 3 bed • 2 bath • 900 ft²
3 bedroom flat for sale in Palmerston Road, Acton, London, W3 — £580,000 • 3 bed • 2 bath • 1084 ft²
2 bedroom flat for sale in Kingswood Road, Chiswick, W4 — £630,000 • 2 bed • 1 bath • 701 ft²






































































































































































































































































































