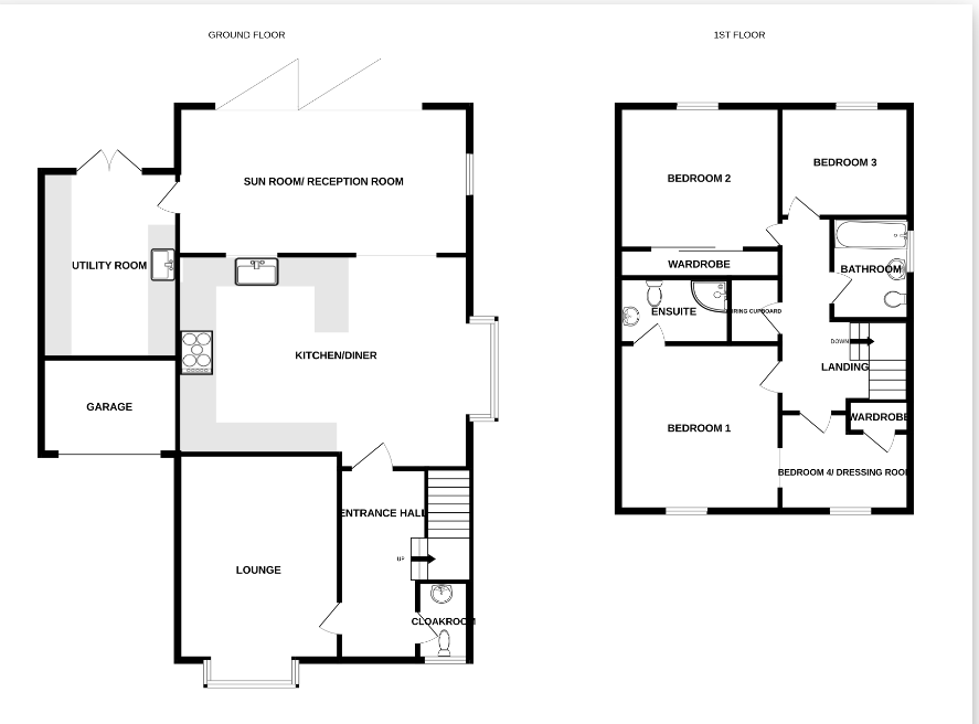
**Standout Features:**
- Recently refurbished and extended
- Four spacious bedrooms, including a master with en-suite
- Open-plan living areas and modern kitchen
- Generous sun room with bi-folding doors to landscaped garden
- Utility room with double doors to the rear garden
- Private driveway and garage (partially converted)
- Located in the peaceful village of Tolleshunt Major
**Potential Concerns:**
- Garage partial conversion limits vehicle storage
- Average mobile signal and broadband speeds
Discover this stunning four-bedroom detached home in the charming village of Tolleshunt Major, recently refurbished to a high standard. The ground floor welcomes you with a cozy lounge, a chic open-plan kitchen/diner featuring top-of-the-line integrated appliances, and an inviting sun room that flows into a beautifully landscaped rear garden—perfect for gatherings or relaxation. Upstairs offers a spacious landing leading to well-appointed bedrooms, while the master boasts a modern en-suite. Currently, the fourth bedroom serves as a dressing room but can easily revert back, presenting flexibility for families or guests.
With its spacious layout, abundant natural light, and family-friendly features, this property is a rare find in a quiet setting. The private driveway adds convenience, and while the garage is partially converted, this offers potential for further enhancements. Enjoy the security of living in a low-crime area with good local amenities and schools nearby. Don’t miss the chance to make this inviting home your own—properties in this desirable location don’t stay on the market for long.
4 bedroom detached house for sale in Beckingham Street, Tolleshunt Major, CM9 — £750,000 • 4 bed • 2 bath • 2347 ft²
3 bedroom detached house for sale in Tolleshunt D'arcy Road, Tolleshunt Major, Maldon, CM9 — £575,000 • 3 bed • 1 bath • 1391 ft²
4 bedroom detached house for sale in Hunts Farm Close, Tollesbury , CM9 — £425,000 • 4 bed • 2 bath • 867 ft²
4 bedroom detached house for sale in Tolleshunt d'Arcy Road, Tolleshunt Major, CM9 — £600,000 • 4 bed • 3 bath • 1900 ft²
5 bedroom detached house for sale in Tolleshunt D'Arcy Road, Tolleshunt Major, Maldon, Essex, CM9 — £650,000 • 5 bed • 2 bath • 2562 ft²
4 bedroom detached house for sale in Vicarage Close, Tolleshunt D'arcy , CM9 — £460,000 • 4 bed • 2 bath • 1380 ft²






























































































































