Extended four-bedroom house with large garden and gated driveway, ideal for family life.
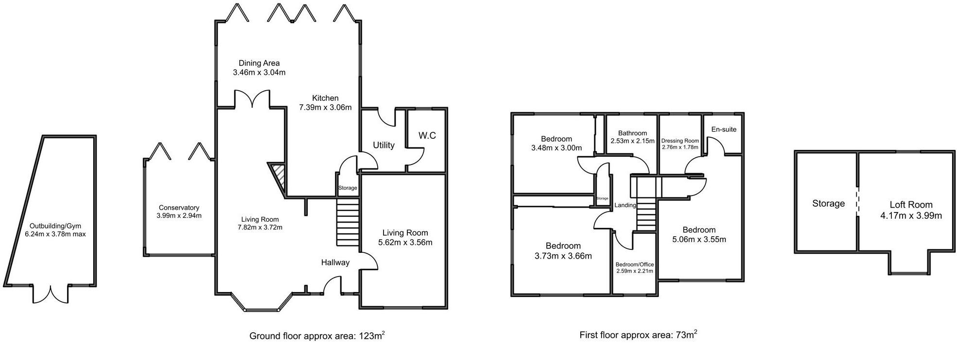
- Spacious open-plan kitchen/diner with bi-fold doors to orangery
- Southwest-facing large garden with patio, summer house and shed
- Master bedroom with en-suite and separate dressing room
- Large gated gravel driveway parking for multiple vehicles
- Living room features a wood burner for extra warmth
- EPC current D (potential B); heating runs on LPG not mains gas
- Two fuse boxes: original house and newer extension
- Located in a rural hamlet; local crime levels reported as high
Set in a sought-after Corley location, this extended four‑bedroom detached home offers generous family living across c.196 sqm. The open-plan kitchen and dining space with bi-fold doors and an orangery brings light and indoor‑outdoor flow to the southwest garden, while a large gated driveway and mature plot provide privacy and parking for several cars.
The ground floor includes a living room with a log burner, utility room and downstairs WC for everyday convenience. The principal bedroom benefits from an en-suite and separate dressing room; three further bedrooms and a family bathroom are arranged over the remaining floors. Recent improvements include a four-year-old boiler and a boarded, insulated loft.
Practical points to note: heating runs on LPG rather than mains gas, and the current EPC is D (upgrade potential to B). The property is an extended stock-built home with two separate fuse boxes serving the original and newer parts. The house is presented in good decorative order but retains elements from its original construction era.
This home will suit a family seeking a spacious rural home with strong indoor–outdoor living and parking, and buyers should allow for energy efficiency upgrades to reach the property’s potential. Freehold tenure and no known subsidence or unsafe cladding are additional positives.
2 bedroom bungalow for sale in Bennetts Road North, Corley, CV7 — £460,000 • 2 bed • 2 bath • 1152 ft²
4 bedroom detached house for sale in Tamworth Road, Coventry, CV7 — £650,000 • 4 bed • 2 bath • 1789 ft²
4 bedroom detached house for sale in Green Lane, Corley, CV7 — £600,000 • 4 bed • 2 bath • 2077 ft²
5 bedroom detached house for sale in Tamworth Road, Keresley End, CV7 — £850,000 • 5 bed • 3 bath • 1765 ft²
3 bedroom detached house for sale in Bennetts Road North, Corley, Warwickshire, CV7 — £325,000 • 3 bed • 2 bath • 989 ft²
3 bedroom detached house for sale in Tamworth Road, Keresley End, CV7 — £850,000 • 3 bed • 3 bath • 1740 ft²






















































































































































































































