Three-bedroom terrace with garden and excellent commuter links for families.
Chain free freehold mid-terrace in quiet cul-de-sac
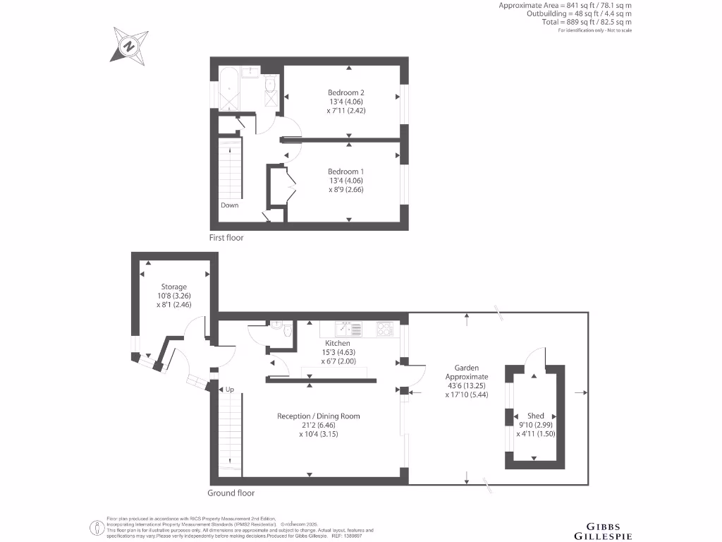
Three bedrooms with open-plan lounge and dining area
Large, well-kept lawned rear garden for family use
Good transport links: buses and Northolt Central line access
Nearby schools rated Good and Outstanding
Average internal size (841 sq ft); small-to-average plot
Area has high crime and high deprivation indicators
Double glazing present; install date unknown
This three-bedroom mid-terraced home in a quiet cul-de-sac is offered chain free and ready for occupation or modest improvement. The layout suits family life with an open-plan living/dining area, a modern-fitted kitchen, guest WC and two bathrooms across the upper floors. A larger-than-typical rear garden for a terrace provides private outdoor space for children and entertaining.
Practical transport links to Central London are a major draw: local buses serve Uxbridge, Heathrow and Brunel University, and Northolt (Central line) is within easy reach. Local schools include Good and Outstanding rated options nearby, and shops, cafés and green spaces are all accessible.
Be upfront about context: the property sits in an area with higher crime levels and significant local deprivation indicators, which may affect buyer priorities and insurance. The house is average in internal size (841 sq ft) with small-to-average plot size and visible mid‑late 20th century construction; double glazing is present but install date is unknown. Overall this freehold terrace offers practical family accommodation, good commuter links and potential for light improvement rather than major redevelopment.
3 bedroom terraced house for sale in Friendship Walk, Hayes, Middlesex, UB5 — £439,950 • 3 bed • 1 bath
3 bedroom terraced house for sale in Friendship Walk, Northolt, UB5 — £440,000 • 3 bed • 1 bath • 776 ft²
2 bedroom terraced house for sale in Wheatsheaf Close, Northolt, UB5 — £380,000 • 2 bed • 1 bath • 671 ft²
3 bedroom terraced house for sale in Hollowfield Walk, Northolt, UB5 — £420,000 • 3 bed • 2 bath • 863 ft²
3 bedroom semi-detached house for sale in Wood End Gardens Northolt, UB5 4QL, UB5 — £515,000 • 3 bed • 1 bath • 740 ft²
3 bedroom terraced house for sale in Owen Close, Northolt, UB5 — £480,000 • 3 bed • 1 bath • 945 ft²


























































































