Contemporary village home with garage and study for family life.
10-year new-build warranty included
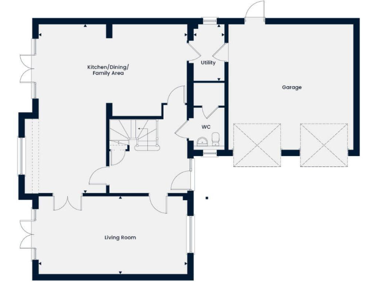
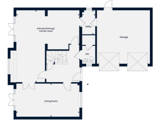
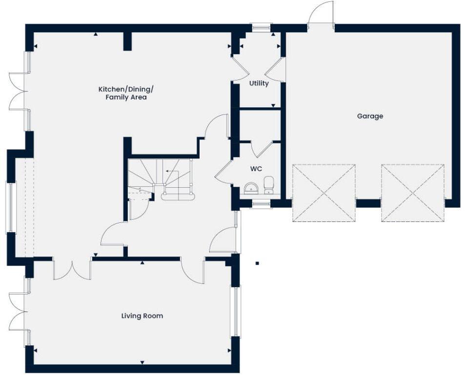
Set on the edge of Woolpit in a prospering countryside location, this newly built five-bedroom detached house offers spacious family living across about 2,056 sqft. The ground floor centres on a large open-plan kitchen/dining/family room with double doors out to an east-facing garden, plus a separate living room, utility and double garage — practical everyday spaces for a busy household.
The first floor is arranged for family convenience: a very large main bedroom with en-suite, a second bedroom also shown with an en-suite, three further bedrooms, a study and a family bathroom. The home is offered with a 10-year new-build warranty and contemporary finishes throughout, making it suitable for purchasers seeking modern rural living with low local crime and good nearby schools.
Important points to check before viewing: the marketing material uses computer-generated images and notes some external finishes or internal upgrades may be optional or vary by plot. Council tax is expected to be high (predicted band F) and buyers should confirm the exact final specification, any optional upgrade costs and the precise count of bathrooms shown versus the structured data. The property is freehold and part of a small new development, so consider landscaping and external finish details on reservation.
4 bedroom detached house for sale in Bury Road,
Woolpit,
IP30 9UY, IP30 — £484,950 • 4 bed • 1 bath • 1095 ft²
4 bedroom semi-detached house for sale in Bury Road,
Woolpit,
IP30 9UY, IP30 — £384,950 • 4 bed • 1 bath • 1268 ft²
4 bedroom detached house for sale in Bury Road,
Woolpit,
IP30 9UY, IP30 — £399,950 • 4 bed • 1 bath • 915 ft²
3 bedroom house for sale in Bury Road,
Woolpit,
IP30 9UY, IP30 — £349,950 • 3 bed • 1 bath • 1048 ft²
4 bedroom town house for sale in Bury Road,
Woolpit,
IP30 9UY, IP30 — £374,950 • 4 bed • 1 bath • 1563 ft²
3 bedroom house for sale in Bury Road,
Woolpit,
IP30 9UY, IP30 — £369,950 • 3 bed • 1 bath • 1048 ft²






































