RG1 7JR - 5 bedroom end of terrace house for sale in Anstey Road, Rea…

View on Property Piper

5 bedroom end of terrace house for sale in Anstey Road, Reading, RG1

Summary - 40 ANSTEY ROAD READING RG1 7JR

5 bed 2 bath End of Terrace

**Standout Features:**
- Five double bedrooms
- Two modern shower rooms
- Fully occupied with rental income exceeding £32,000 per year
- Enclosed courtyard garden
- Prime location near Reading town center and railway station

**Summary:**
Unlock the potential of this well-presented end-of-terrace Victorian home, perfect for investors or those seeking a rental opportunity. Boasting five spacious double rooms, two shower rooms, a fully fitted kitchen with a utility area, and an appealing courtyard garden, this property not only provides comfortable living spaces but is also generating an annual rental income of over £32,000.

Situated in a vibrant urban area characterized by its cosmopolitan atmosphere, this licensed HMO offers easy access to local amenities, schools rated 'Good' and 'Outstanding', and the convenience of fast broadband. While the property showcases charming period features, including high ceilings and bay windows, it's essential to note some structural aspects: built prior to 1900 with solid brick walls, it may require future renovation for insulation improvements.

With its current high occupancy and excellent mobile signal, this property presents a unique opportunity to secure a steady return in a desirable locale. Don’t miss the chance to own a piece of Reading's growing rental market!

Property Details

Image Descriptions

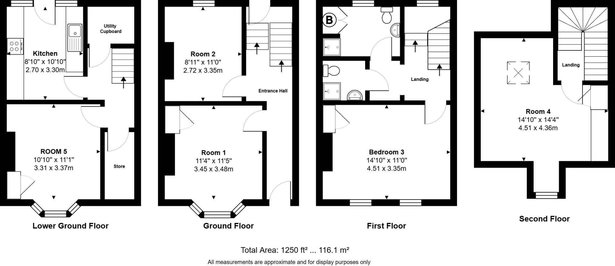
Floorplan Description

Rooms

Textual Property Features

Detected Visual Features

EPC Details

Nearby Schools

Nearest Bars And Restaurants

,,,,}

Nearest General Shops

,,}

Nearest Grocery shops

,,}

Nearest Supermarkets

,,}

Nearest Religious buildings

,,}

Nearest Medical buildings

,,,}

Nearest Airports

}

Nearest Leisure Facilities

,,,,}

Nearest Tourist attractions

,,}

Nearest Train stations

,,,,}

Nearest Bus stations and stops

,,,,}

Nearest Hotels

,,}

Tags

Local Market Stats

AirBnB Data

Meta

High Res Images

Compatible Images

Low res Images

Thumbnails

Raw Images

High Res Floorplan Images

Compatible Floorplan Images

Low res Floorplan Images

FloorplanImages Thumbnail

Raw Floorplan Images