**Standout Features:**
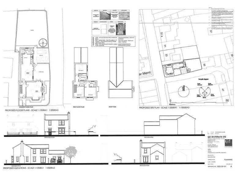
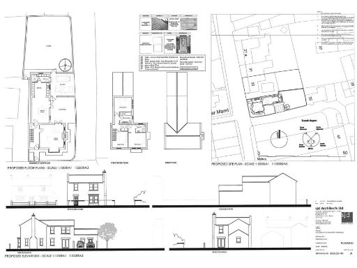
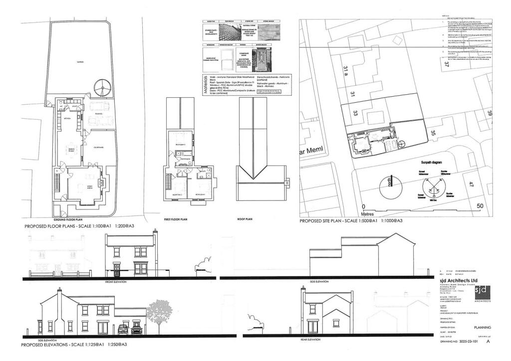
- Building plot with full planning permission for a three-bedroom detached house
- Prime location in the heart of Moorsholm
- Approximate plot size of 310 square meters
- Driveway parking for two vehicles
- Garden area with ample outdoor space
- Rural setting with scenic views
**Potential Concerns:**
- Broadband speeds are very slow
- Listed area has above-average crime rates
- Local area classified as deprived
Explore the abundant potential of this generous building plot in Moorsholm, Saltburn-By-The-Sea. Spanning approximately 310 square meters, this plot boasts full planning permission for a modern three-bedroom detached home with a driveway for two cars and a charming garden. Nestled in a picturesque rural setting, it’s an ideal canvas for families looking to create a welcoming space to call home.
While the idyllic surroundings may provide peace and serenity, it is worth noting that the area does experience slow broadband speeds and higher crime rates compared to average. Additionally, local amenities include quaint spots like the nearby playground and place of worship, adding to the community feel. Secure this exceptional opportunity to build your dream home in a scenic village location—properties with planning permission like this don't stay on the market for long!
Land for sale in Blenheim Close, Marske-by-the-sea, Redcar, TS11 — £210,000 • 1 bed • 1 bath • 19166 ft²
4 bedroom detached house for sale in Ingleby Greenhow, Ingleby Greenhow, North Yorkshire, TS9 — £180,000 • 4 bed • 2 bath • 1343 ft²
3 bedroom terraced house for sale in Ward Street, Moorsholm, TS12 — £185,000 • 3 bed • 1 bath • 938 ft²
Land for sale in Land Marwood Drive, Great Ayton, Middlesbrough, Cleveland, TS9 6PD, TS9 — £150,000 • 4 bed • 3 bath
5 bedroom link detached house for sale in Cow Close Lane, Moorsholm, Saltburn-by-the-Sea, North Yorkshire, TS12 — £700,000 • 5 bed • 3 bath • 2741 ft²
Land for sale in Land at Hutton Street, TS13 4BJ, TS13 — POA • 1 bed • 1 bath • 21780 ft²






















