Practical family home near good schools and soon-to-reopen local station.
Extended kitchen/diner with patio doors to low-maintenance rear garden
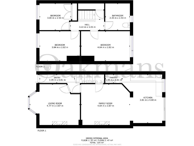
This three-bedroom mid-terrace offers practical family living in a well-connected part of Birmingham. The house has been extended to provide an open kitchen/diner with patio doors to a low-maintenance rear garden and benefits from off-street parking and a lawned front garden.
Internally you'll find two reception rooms — one with a bay window — three good-sized bedrooms and a single family bathroom. The property is freehold and uses mains gas central heating with radiators; glazing is double, though the installation date is unknown. The home was built between 1930–1949 and has solid brick walls with no known cavity insulation, so buyers should allow for possible energy-efficiency upgrades.
Location is a clear selling point: close to schools (several rated Outstanding), local shops, parks and bus routes, with the Pineapple station due to reopen nearby. Broadband speeds are fast, and common utilities are mains-supplied.
Notable cautions are factual: the area records higher crime and very high deprivation indices, the plot is small, and there is only one bathroom. Structural or safety issues are not stated, but the solid-brick, older build and unknown glazing/insulation details mean sensible buyers should budget for modernization and efficiency improvements after purchase.
3 bedroom terraced house for sale in Milverton Road, Birmingham, B23 6ER, B23 — £220,000 • 3 bed • 1 bath • 902 ft²
3 bedroom terraced house for sale in Frome Way, Birmingham, B14 — £235,000 • 3 bed • 1 bath • 907 ft²
3 bedroom terraced house for sale in Saxelby Close, Birmingham, West Midlands, B14 — £190,000 • 3 bed • 1 bath • 818 ft²
3 bedroom semi-detached house for sale in Tonbridge Road, Birmingham, B24 8ED, B24 — £250,000 • 3 bed • 2 bath
3 bedroom terraced house for sale in Arundel Road, Birmingham, B14 5TY, B14 — £270,000 • 3 bed • 1 bath • 790 ft²
3 bedroom terraced house for sale in Coleshill Heath Road, Chelmsley Wood, Birmingham, B37 — £190,000 • 3 bed • 1 bath • 1663 ft²














































































































