Large period semi with garden, parking and excellent transport links—ideal for families.
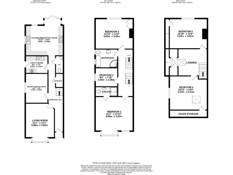
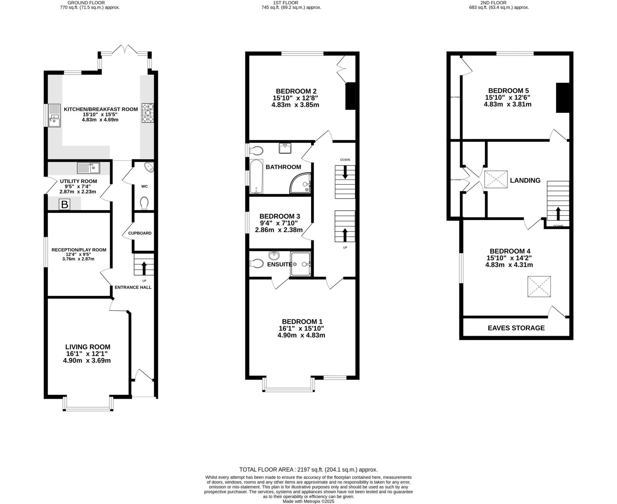
Five double bedrooms across three floors including 16ft master with ensuite
This Edwardian, double-bay semi presents a roomy family home across three floors, close to both Caversham and Reading centres. Original period features and high ceilings create bright, well-proportioned rooms — including a 16ft living room and a 16ft master with ensuite — suited to growing families who need space and convenient commuting links.
The ground floor has a large 15ft kitchen–breakfast room with French doors to a private rear garden, plus a utility room and cloakroom for practical family use. Upstairs there are four further double bedrooms and a single room on the top floor, with useful eaves storage and a separate family bathroom. Off-street parking at the front and a decent-sized rear lawn add everyday convenience.
Buyers should note the house is a solid-brick period build and, while presented in good condition, the walls are assumed to have no built-in insulation. The property is freehold, has double glazing fitted since 2002 and mains gas central heating, but purchasers may wish to budget for thermal upgrades and ongoing maintenance associated with older properties. Council tax is above average for the area.
Overall this is a spacious, characterful family home in a very affluent, well-served neighbourhood. It will appeal to families wanting generous living space, good local schools, and easy access to town and station, while also offering scope to improve energy efficiency and personalise finishes.
4 bedroom detached house for sale in Grosvenor Road, Caversham, Reading, RG4 — £1,250,000 • 4 bed • 2 bath • 2043 ft²
5 bedroom semi-detached house for sale in St. Peters Road, Reading, RG6 — £600,000 • 5 bed • 3 bath • 1741 ft²
4 bedroom semi-detached house for sale in Valley Close, Caversham, RG4 — £695,000 • 4 bed • 3 bath • 1917 ft²
4 bedroom semi-detached house for sale in Belle Avenue, Earley, RG6 — £695,000 • 4 bed • 2 bath • 1701 ft²
5 bedroom semi-detached house for sale in Harrogate Road, Caversham, Reading, RG4 — £900,000 • 5 bed • 2 bath • 2080 ft²
5 bedroom end of terrace house for sale in Douglas Road, Caversham, RG4 — £500,000 • 5 bed • 2 bath • 1475 ft²














































































































