**Standout Features:**
- Grade II listed Georgian home with original period charm, built circa 1830
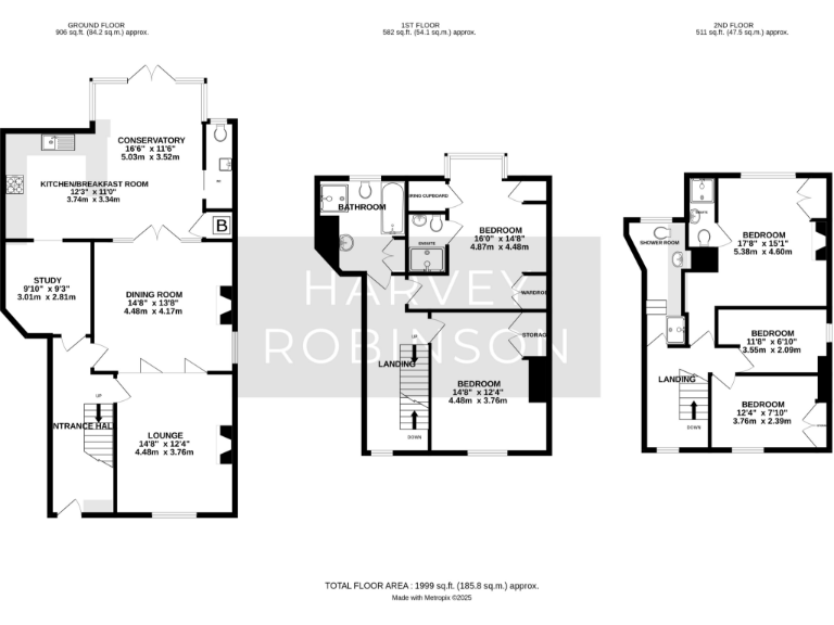
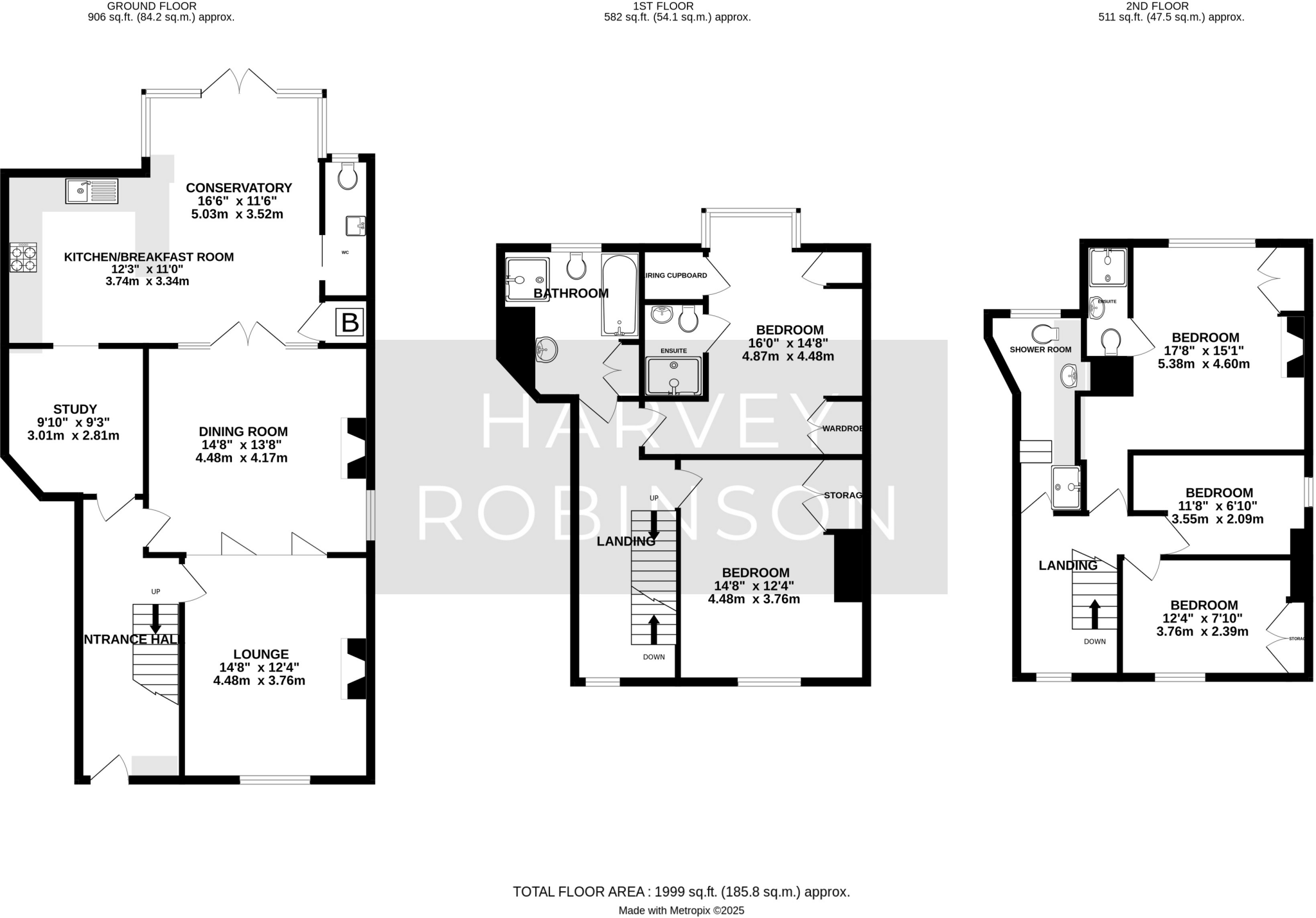
- Spacious five bedrooms and four bathrooms (two ensuite)
- Three elegant reception rooms including a stunning conservatory with vaulted ceilings
- Expansive east-facing rear garden perfect for entertaining
- Off-road parking for several vehicles
- Close proximity to local amenities and great commuter links
This elegant five-bedroom Georgian semi-detached home offers an exceptional blend of historic charm and modern living, making it perfect for families or those who appreciate traditional design. With approximately 1999 square feet of living space, the property boasts three reception rooms, including a magnificent conservatory that seamlessly connects with the spacious kitchen/breakfast area, making it ideal for gatherings. You will appreciate the high ceilings, original features, and comfortable ambiance throughout.
The versatile layout includes two ensuite bedrooms, allowing for privacy and convenience, while an additional three bedrooms on the top floor provide ample space for a growing family. The fully enclosed rear garden is perfect for outdoor dining and horticultural pursuits, featuring raised beds and a variety of mature plants and fruit trees.
Please note, being a Grade II listed property may present some renovation challenges, and potential buyers should be aware of the requirements that come with maintaining its historical significance. Located in the highly sought-after area of Eaton Socon, just over a mile from St Neots town center, this property provides easy access to amenities and transport links, making it a prime opportunity for comfortable, character-filled living. Interested buyers should act quickly, as opportunities like this do not last long.
7 bedroom detached house for sale in Great North Road, Eaton Socon, St. Neots, PE19 — £1,400,000 • 7 bed • 4 bath • 5209 ft²
5 bedroom detached house for sale in Great North Road, Eaton Ford, PE19 — £800,000 • 5 bed • 2 bath • 2326 ft²
4 bedroom detached house for sale in Whinfell Close, Eaton Socon, St. Neots, PE19 — £450,000 • 4 bed • 2 bath • 1276 ft²
5 bedroom detached house for sale in Cambridge Street, St. Neots, Cambridgeshire, PE19 — £1,500,000 • 5 bed • 3 bath • 3164 ft²
4 bedroom detached house for sale in Washbank Road, St. Neots, PE19 — £1,500,000 • 4 bed • 3 bath • 2594 ft²
3 bedroom semi-detached house for sale in Blackwood Road, Eaton Socon, PE19 — £325,000 • 3 bed • 1 bath • 974 ft²


























































































































