Large garden, garage and easy access to city and hospitals.
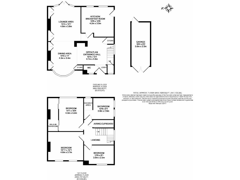
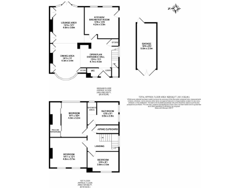
Over 1,600 sq ft of living space
This substantial three-bedroom semi-detached home on Wingrove Road offers more than 1,600 sq ft of flexible living, well-suited to families seeking space close to Newcastle city centre and local hospitals. The ground floor features a 24ft open-plan lounge/diner with walk-in bays, a refitted kitchen/breakfast room, and handy ground-floor WC. Upstairs are three double bedrooms, a walk-in wardrobe to the principal room and a family bathroom with separate walk-in shower. Outside there is a generous walled rear garden, front garden, driveway and an 18ft garage.
Built circa 1925, the property retains period character in a solid-brick build but has modern comforts including double glazing (fitted after 2002) and mains gas central heating via boiler and radiators. The location benefits from excellent local amenities, strong transport links, fast broadband and a cluster of well-regarded schools nearby, including outstanding and top 10% options.
Buyers should note practical points: the solid brick walls are assumed to have no added insulation, so further thermal upgrades could be needed to improve efficiency and running costs. Council tax is above average (Band E) and the house, while largely modernised, may require ongoing maintenance typical of early-20th-century homes. EPC listed as C (to be confirmed).
3 bedroom terraced house for sale in Wingrove Road, Fenham, Newcastle upon Tyne, NE4 — £245,000 • 3 bed • 1 bath • 1408 ft²
6 bedroom terraced house for sale in Wingrove Road, Fenham, Newcastle upon Tyne, NE4 — £370,000 • 6 bed • 2 bath • 2209 ft²
3 bedroom semi-detached house for sale in Powburn Gardens, Fenham, NE4 — £285,000 • 3 bed • 1 bath • 1224 ft²
4 bedroom detached house for sale in Wingrove Road North, Fenham, Newcastle Upon Tyne, NE4 — £500,000 • 4 bed • 2 bath • 1812 ft²
3 bedroom semi-detached house for sale in Powburn Gardens, Fenham, Newcastle upon Tyne, NE4 — £280,000 • 3 bed • 1 bath • 1300 ft²
3 bedroom semi-detached house for sale in Silverhill Drive, Fenham, Newcastle Upon Tyne, NE5 — £190,000 • 3 bed • 1 bath • 764 ft²






































































