Ready-to-rent or move-in one-bedroom close to shops and transport.
One double bedroom ground-floor flat, newly renovated
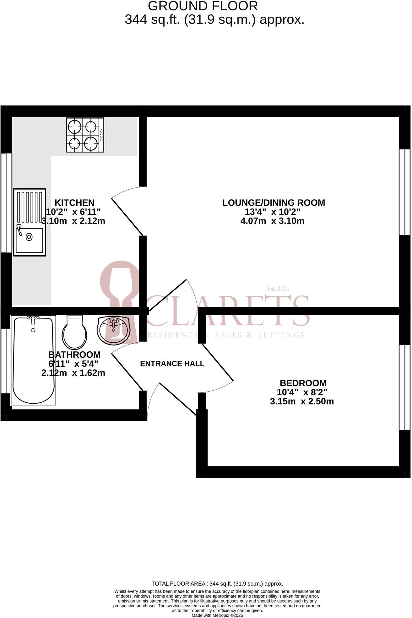
A bright, newly renovated one-bedroom ground-floor flat in a popular Bushey turning, offered with a long lease and communal gardens. The accommodation includes a modern fitted kitchen, luxury three-piece bathroom, and laminated wood flooring throughout, ready to move into or let immediately.
The flat is being marketed as an investment currently let for £1,300pcm, producing an established rental income, or as an affordable first-time purchase close to local shops, buses and Bushey Heath. Bushey mainline station is within about a mile, providing fast commuter links to London.
Practical benefits include gas-fired central heating, double glazing, an approximately 247-year lease and a below-average annual service charge (£608). Buyers should verify tenure details and service charge information with their solicitor before exchange.
The property is compact (approximately 344 sq ft) which suits single buyers, couples or buy-to-let portfolios but limits storage and living space compared with larger flats. The communal setting means external maintenance is shared, and there is a peppercorn ground rent noted in vendor details.
1 bedroom flat for sale in Chalk Hill, Bushey, Watford, WD19 — £200,000 • 1 bed • 1 bath • 430 ft²
1 bedroom flat for sale in Hogarth Court, Bushey, WD23 — £264,000 • 1 bed • 1 bath • 484 ft²
1 bedroom flat for sale in Aldenham Road, Bushey, WD23 — £250,000 • 1 bed • 1 bath • 411 ft²
1 bedroom apartment for sale in Hogarth Court, Steeplands, Bushey, WD23 — £264,000 • 1 bed • 1 bath • 484 ft²
1 bedroom flat for sale in Aldenham Road, Bushey, WD23 — £250,000 • 1 bed • 1 bath • 411 ft²
1 bedroom flat for sale in Bournehall Avenue, Bushey, WD23., WD23 — £229,950 • 1 bed • 1 bath • 358 ft²






































