Chain-free two-bedroom flat with garden access and refurbishment potential in Budleigh Salterton.
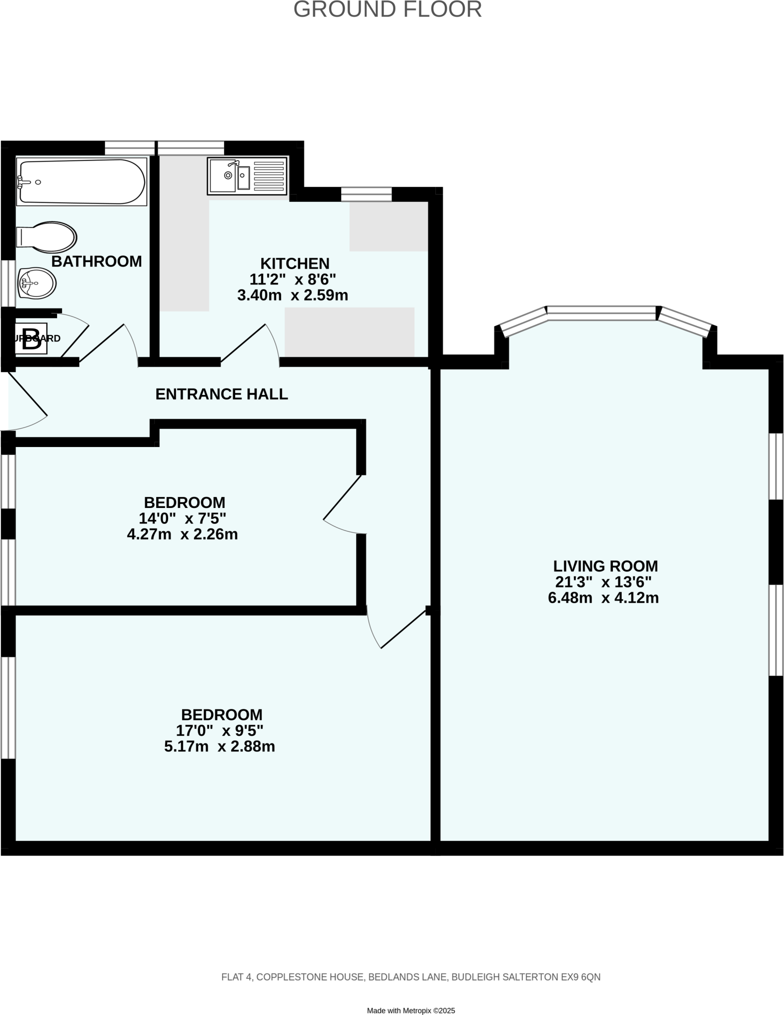
Own ground-floor entrance hall and living room with bay window
Two double bedrooms within approximately 647 sq ft
Communal gardens and mature grounds shared with main house
Gas central heating via boiler and radiators present
Needs renovation — kitchen, bathroom and general redecoration
Leasehold tenure — buyer to check lease length and service charges
Double glazing fitted, install date unknown
No flood risk; low council tax and very low local crime
A ground-floor, two-bedroom apartment set within Copplestone House, a 1930s brick period building in quiet Budleigh Salterton. The flat has its own entrance hall, a living room with large bay windows, kitchen, bathroom and communal gardens backing onto mature landscaping. Gas central heating is installed and glazing is double; dates unknown.
Sold chain free and offered at a competitive price, the apartment totals about 647 sq ft and suits a first-time buyer or purchaser seeking a refurbishment project. The layout is traditional and provides scope to modernise the kitchen, bathroom and internal finishes to add value.
Important practical points: the property is leasehold, requires renovation, and some elements (timber-frame walls as built) may lack modern insulation. Flood risk is low, council tax is inexpensive, mobile signal is excellent and broadband speeds are average.
This is a budget-friendly opportunity to secure a period apartment in a peaceful, well-served small town — buy to live or update and revalue, but allow for refurbishment costs and leasehold considerations.
2 bedroom apartment for sale in East Budleigh Road, Budleigh Salterton, Devon, EX9 — £210,000 • 2 bed • 1 bath • 657 ft²
2 bedroom apartment for sale in Station Road, Budleigh Salterton, Devon, EX9 — £199,950 • 2 bed • 1 bath • 602 ft²
2 bedroom flat for sale in West Hill Court, Budleigh Salterton, Devon, EX9 — £350,000 • 2 bed • 2 bath • 967 ft²
2 bedroom apartment for sale in Brook Meadow Court, Exmouth Road, Budleigh Salterton, Devon, EX9 — £270,000 • 2 bed • 1 bath • 611 ft²
2 bedroom apartment for sale in The Lawn, Budleigh Salterton, Devon, EX9 — £365,000 • 2 bed • 1 bath • 981 ft²
2 bedroom apartment for sale in Norman Crescent Budleigh Salterton, EX9 — £200,000 • 2 bed • 2 bath • 498 ft²






















































