Modern, low-maintenance three-bed close to Mistley village and riverside walks.
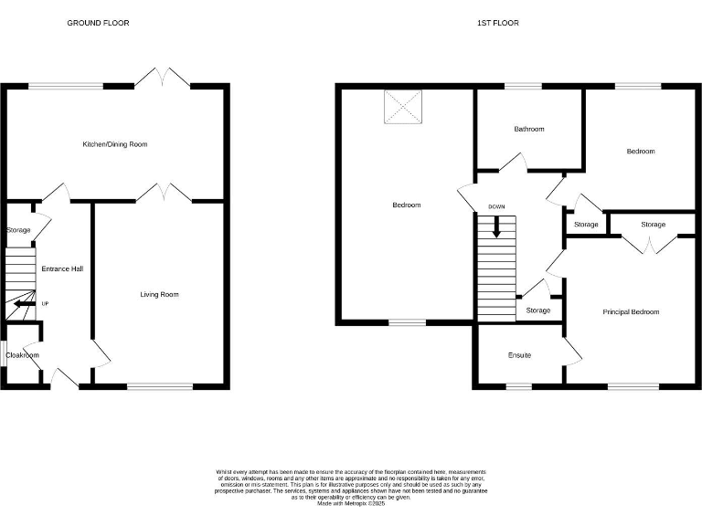
Three bedrooms with principal ensuite and modern family bathroom
A contemporary three-bedroom link-detached home completed in 2022, set on the River Reach development close to Mistley village and the River Stour. The ground floor offers a front living room, an open-plan kitchen/dining area with French doors onto the rear garden, and a practical cloakroom. Upstairs the generous principal bedroom has an ensuite, with two further bedrooms and a family bathroom providing comfortable family accommodation.
Outside, the enclosed rear garden includes a paved patio and lawn, plus a separate powered studio/office and adjacent locked storage — ideal for home working or hobbies. The front provides private off-road parking beneath a covered carport with an EV charging point, adding everyday convenience and lower running costs. The property is freehold and benefits from modern construction standards and good thermal performance.
Practical considerations are straightforward: council tax is moderate, broadband and mobile signals are strong, and there is no flood risk recorded. The studio is a useful outbuilding but buyers should confirm its suitability for specific business or planning uses. Overall this is a low-maintenance modern family home in a quiet, well-connected setting with good local schools and countryside access.
4 bedroom link detached house for sale in Propino Way, Mistley, Manningtree, CO11 — £500,000 • 4 bed • 3 bath • 1505 ft²
3 bedroom link detached house for sale in Mistley, Manningtree, CO11 — £400,000 • 3 bed • 2 bath • 1407 ft²
3 bedroom town house for sale in Shrubland Road, Mistley, Manningtree, CO11 — £300,000 • 3 bed • 2 bath • 838 ft²
2 bedroom semi-detached house for sale in Manningtreepark, Mistley, Manningtree, CO11 — £355,000 • 2 bed • 2 bath • 10082 ft²
3 bedroom detached bungalow for sale in Mistley, Manningtree, CO11 — £570,000 • 3 bed • 2 bath • 1203 ft²
3 bedroom detached house for sale in Remercie Road, Mistley, CO11 — £310,000 • 3 bed • 2 bath • 1108 ft²














































































































