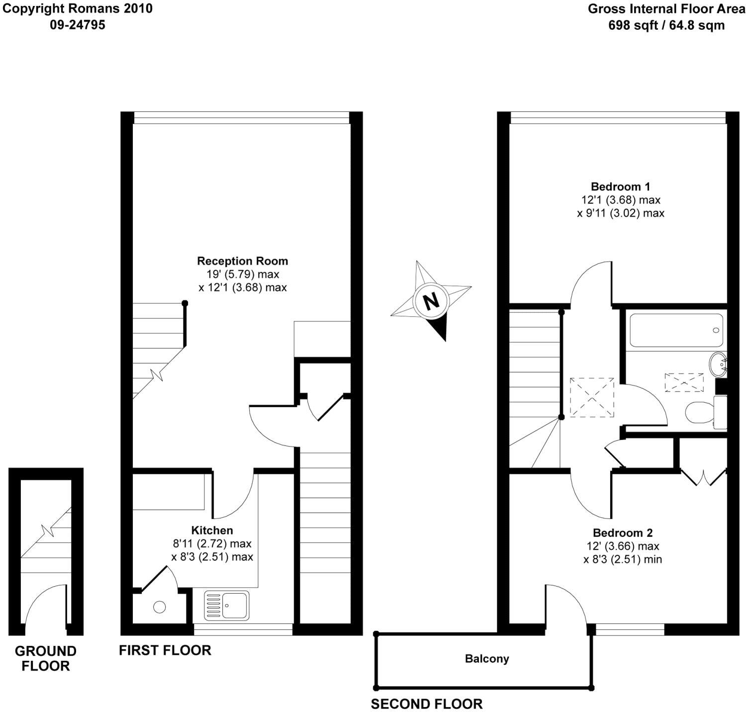
**Standout Features:**
- Modern duplex apartment
- 2 spacious bedrooms, 1 bathroom
- Stylish, well-equipped kitchen with contemporary appliances
- Light-filled reception room with ample natural light
- Private balcony for outdoor relaxation
- Secure garage for parking and storage
- 107-year lease, chain-free sale
- Prime location near amenities, schools, and transport links
**Potential Concerns:**
- Average size of 698 sqft may not suit larger families
- High crime rate in the area may be a concern for some
Discover modern urban living in this beautifully designed mid-century duplex, perfect for professionals or small families looking for comfort and style. The apartment features a contemporary kitchen, equipped with high-end appliances, leading into a spacious reception room that draws in abundant natural light. The two well-proportioned bedrooms provide restful retreats, while the private balcony offers a charming space to unwind outdoors.
With a secure garage included, you'll enjoy convenience and practicality in this prime location close to essential amenities and reputable schools. Plus, the 107-year lease ensures long-term security in your investment. While the compact layout may not accommodate larger families, this inviting apartment offers an ideal opportunity for those seeking an affordable entry into the housing market. Act quickly—properties like this don't last long in such a sought-after area!
2 bedroom apartment for sale in Prospect Street, Reading, Berkshire, RG1 — £200,000 • 2 bed • 1 bath • 813 ft²
2 bedroom maisonette for sale in Lima Court, Bath Road, Reading, RG1 — £259,950 • 2 bed • 1 bath • 722 ft²
2 bedroom apartment for sale in Southcote Road, Reading, Berkshire, RG30 — £270,000 • 2 bed • 1 bath • 818 ft²
1 bedroom apartment for sale in Rowe Court, Grovelands Road, Reading, Berkshire, RG30 — £165,000 • 1 bed • 1 bath • 381 ft²
2 bedroom apartment for sale in Bath Road, Reading, Berkshire, RG30 — £220,000 • 2 bed • 1 bath • 808 ft²
2 bedroom maisonette for sale in Liebenrood Road, Reading, Berkshire, RG30 — £250,000 • 2 bed • 1 bath • 720 ft²






































