**Standout Features:**
- Chain-free sale
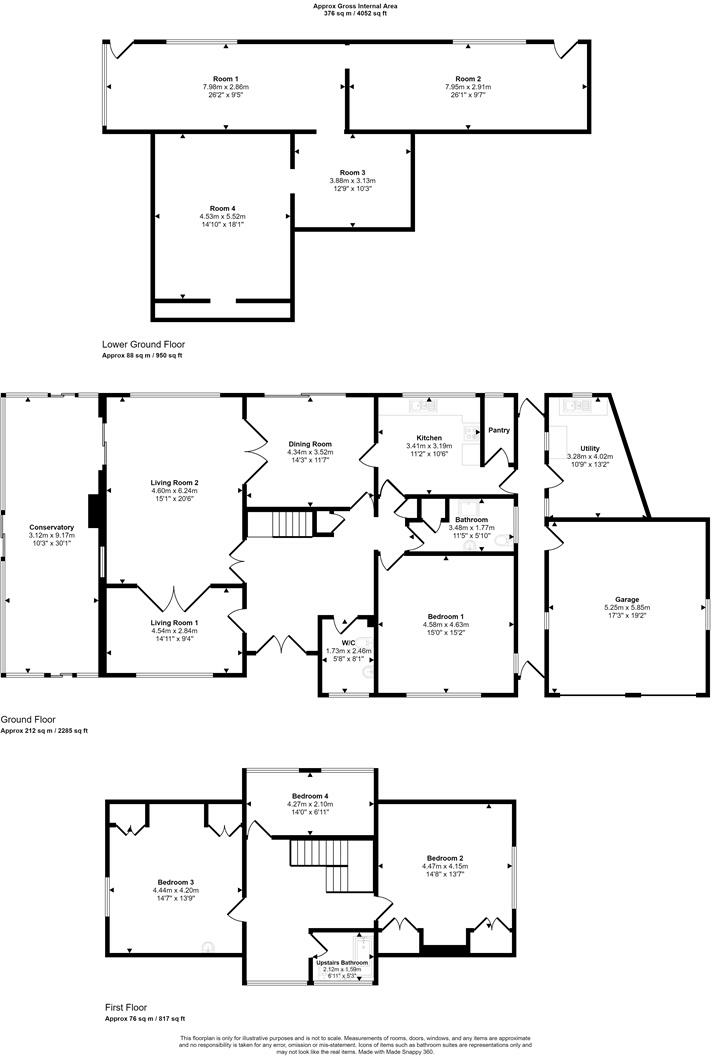
- Spacious detached dormer bungalow with four bedrooms
- Expansive grounds of approximately 0.97 acres
- Three versatile reception areas and a functional kitchen
- Double garage and ample off-road parking
- Countryside views with mature gardens
- Development potential for renovations or extensions
**Potential Concerns:**
- Property requires some modernization
- Current access to the lower part of the house is limited
Discover this exceptional four-bedroom detached dormer bungalow nestled on the peaceful outskirts of Haverfordwest. Spanning approximately 0.97 acres, this spacious home boasts a large garden complemented by serene countryside views, perfect for family gatherings or peaceful retreats. Inside, you’ll find three versatile reception areas, a functional kitchen, and ample potential for personalization. The added benefit of a double garage and off-road parking creates a practical space for multiple vehicles.
Ideal for families or those looking to invest, this property presents an exciting opportunity for renovations or extensions (subject to permissions), ensuring your vision comes to life. Although some modernization is needed, the generous layout and chain-free status offer a seamless transition into your new home. With the thriving community nearby, including schools, shops, and recreational facilities, this bungalow is not just a house—it's a chance to create the perfect family oasis. Act quickly, as opportunities like this don’t last long!
4 bedroom detached bungalow for sale in Popehill, Haverfordwest, SA62 — £380,000 • 4 bed • 2 bath • 2403 ft²
4 bedroom detached house for sale in Uzmaston Road, Haverfordwest, SA61 — £495,000 • 4 bed • 2 bath • 1850 ft²
6 bedroom detached house for sale in Uzmaston, Haverfordwest, SA61 — £599,950 • 6 bed • 5 bath • 4248 ft²
4 bedroom detached bungalow for sale in Haven Road, Haverfordwest, SA61 — £500,000 • 4 bed • 3 bath • 3302 ft²
4 bedroom detached house for sale in Uzmaston Road, Haverfordwest, Pembrokeshire, SA61 — £350,000 • 4 bed • 2 bath • 1299 ft²
3 bedroom detached house for sale in Queensway, Haverfordwest, SA61 — £265,000 • 3 bed • 2 bath • 1152 ft²






















































































