High-spec one-bedroom in Zone 2 with extensive resident facilities.
West-facing balcony with city views
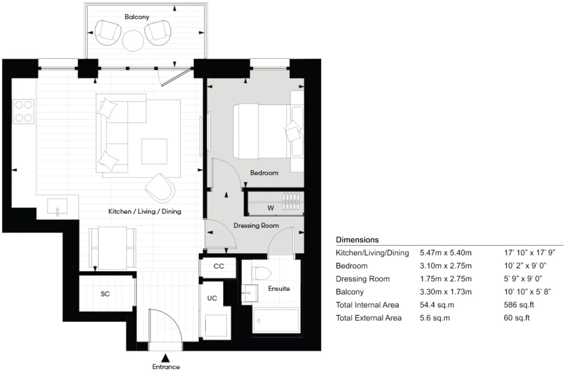
This 1-bedroom, 1-bathroom apartment in Bow Green offers contemporary Zone 2 living with a private west-facing balcony and 588 sq ft of open-plan space. High-spec finishes, underfloor heating and floor-to-ceiling glazing create a bright, modern home that suits first-time buyers seeking comfort and low-maintenance living. Residents benefit from 24-hour concierge and security plus extensive on-site amenities including indoor and outdoor pools, gym, cinema and landscaped gardens.
The development’s central location delivers excellent transport links, fast broadband and proximity to universities, colleges and several well-rated primary and secondary schools. The completion date is 2026, so buyers will be purchasing off-plan and should allow for the usual lead time before occupation. Flood risk is nil and mobile signal is excellent, supporting hybrid working and student life.
Important practical points: the property is leasehold and part of a large, managed scheme. The local area is described as inner-city cosmopolitan with a higher-than-average crime rate; prospective buyers should factor neighbourhood safety and management arrangements into their decision. The apartment is an average-sized one-bedroom (588 sq ft) — comfortable but not large — offering a convenient, amenity-rich lifestyle rather than spacious family accommodation.
Overall this home suits a first-time buyer or professional wanting a turn-key, well-serviced base in East London with strong transport and education links. It also has investor appeal for rental to students and young professionals, though buyers should verify lease terms, service charge levels and security arrangements before committing.
2 bedroom flat for sale in Bow Green, Bow Common Lane, London, E3 — £590,000 • 2 bed • 2 bath • 834 ft²
1 bedroom apartment for sale in Bow Green, Bow, E3 — £458,000 • 1 bed • 1 bath • 561 ft²
2 bedroom apartment for sale in Bow Green, Bow Common Lane, London, E3 — £690,000 • 2 bed • 2 bath • 754 ft²
2 bedroom apartment for sale in Bow Green, Bow Common Lane, London, E3 — £695,000 • 2 bed • 2 bath • 842 ft²
1 bedroom apartment for sale in Bow Common Lane, Bow, E3 — £545,000 • 1 bed • 1 bath • 586 ft²
1 bedroom apartment for sale in Bow Green, 120 Bow Common Ln, E3 — £520,000 • 1 bed • 1 bath • 485 ft²










































































