Characterful central starter home with garden and upgrade potential.
Chain free freehold sale
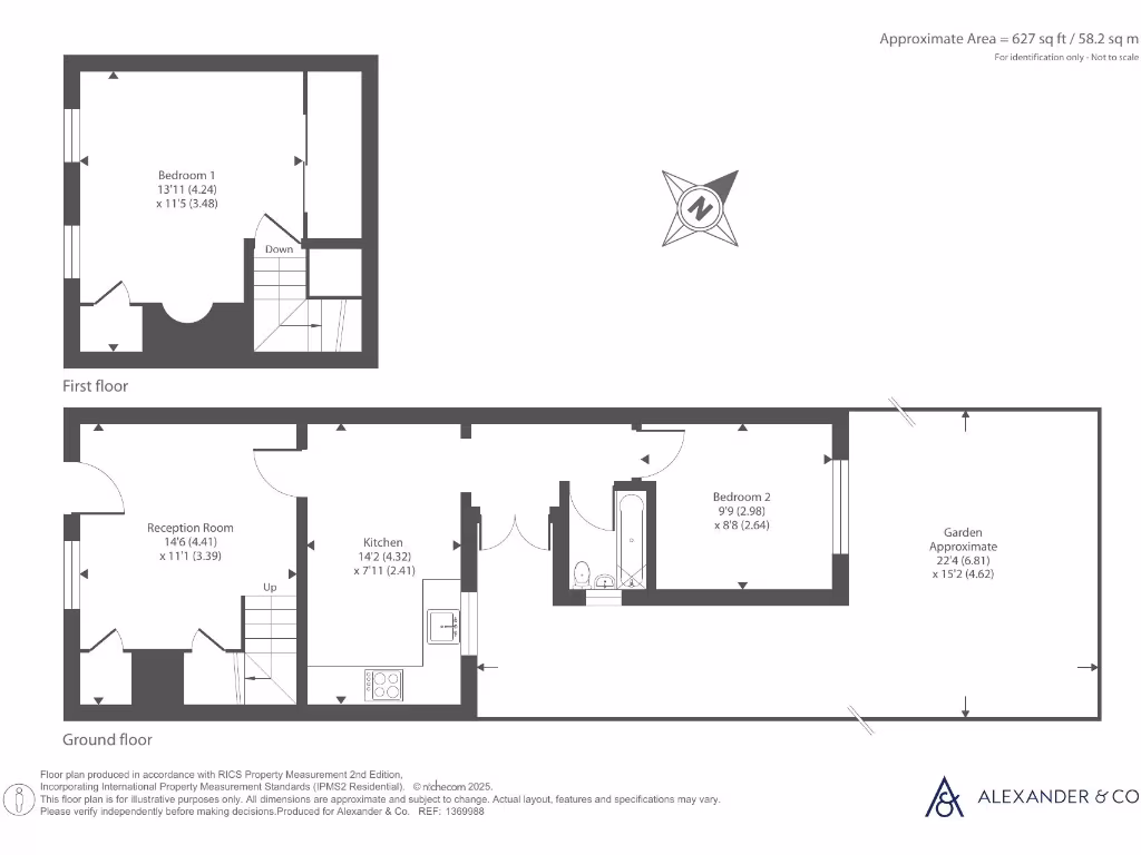
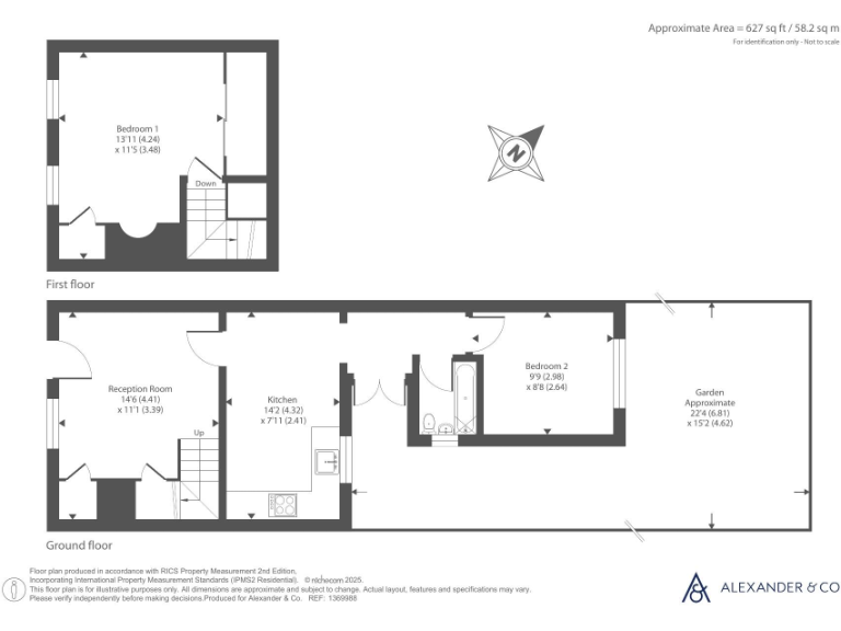
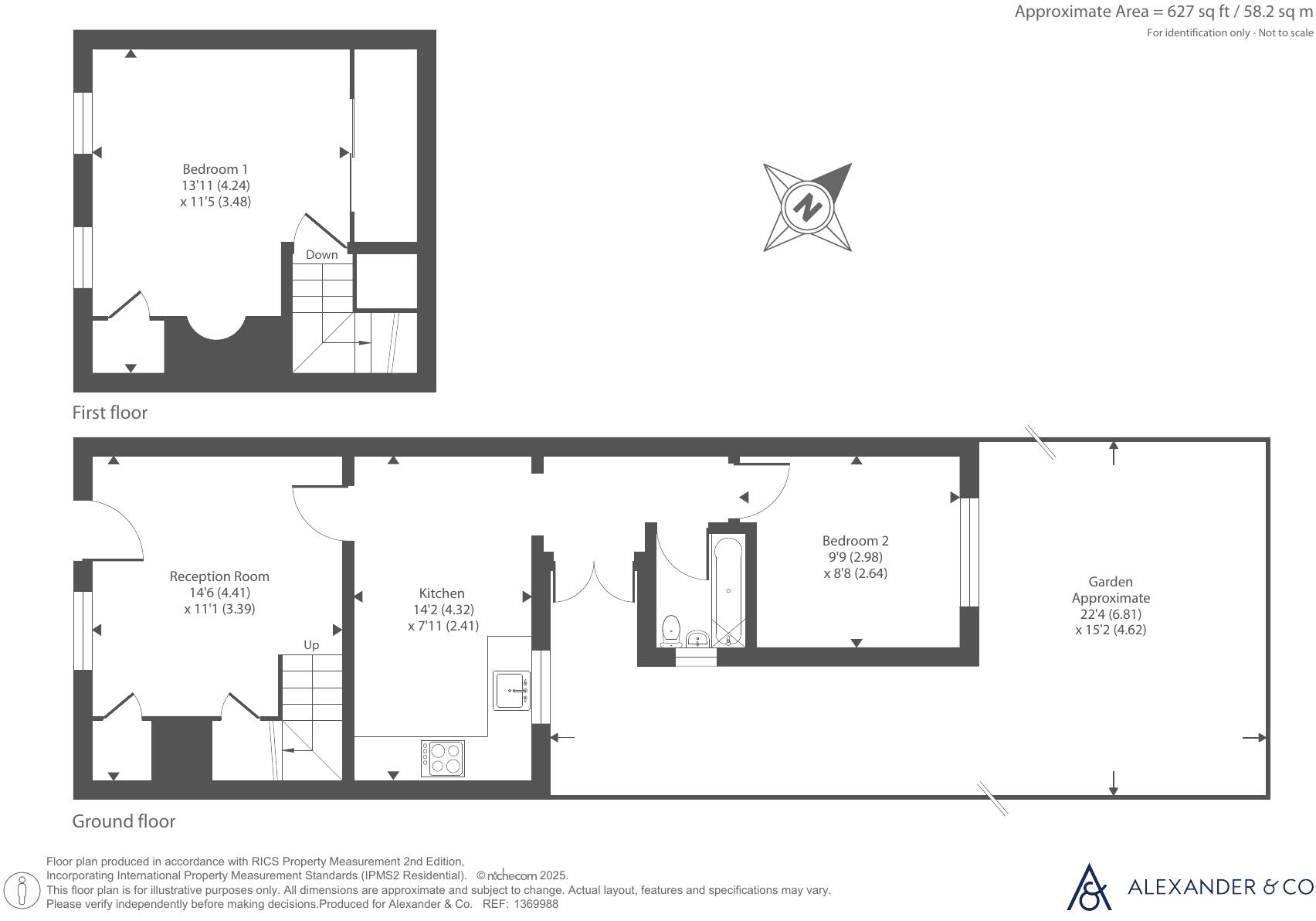
Private rear garden, small plot
Original period features and sash windows
Approximately 627 sq ft, compact rooms
Gas central heating; double glazing (install date unknown)
Built 1900–1929; solid brick, likely no wall insulation
Interior dated; requires modernization to improve finish
Central location with fast broadband and very low crime
This compact two-bedroom terraced house pairs original Georgian character with a convenient central location. Period features such as sash windows, exposed beams and a feature fireplace create immediate charm, while the private rear garden offers a pleasant outdoor space for a town-centre home.
Sold freehold and chain free, the property is well suited to first-time buyers seeking a starter home or investors after a central let. The layout includes a cosy lounge, kitchen/breakfast room, ground-floor bathroom and a principal bedroom upstairs, all within approximately 627 sq ft of living space.
Practical considerations are straightforward: gas central heating and double glazing are present, but parts of the interior are dated and would benefit from modernization. The solid brick construction indicates original wall build with no built-in insulation, so upgrading thermal performance could be a sensible next step and an opportunity to add value.
Nearby amenities, good transport links, fast broadband and very low local crime make the location desirable for everyday living. Buyers should note the small plot size and modest room proportions when viewing, but the property’s character and central position offer clear potential for improvement and future gain.
2 bedroom terraced house for sale in Dudley Street, Leighton Buzzard, LU7 — £280,000 • 2 bed • 1 bath • 682 ft²
2 bedroom terraced house for sale in Hillside Road, Luton, Bedfordshire, LU3 — £250,000 • 2 bed • 1 bath • 700 ft²
2 bedroom terraced house for sale in Vandyke Road, Leighton Buzzard, LU7 — £240,000 • 2 bed • 1 bath • 593 ft²
2 bedroom terraced house for sale in Tavistock Street, Luton, LU1 — £245,000 • 2 bed • 1 bath • 575 ft²
2 bedroom terraced house for sale in Dudley Street, Leighton Buzzard, LU7 — £350,000 • 2 bed • 2 bath • 775 ft²
2 bedroom terraced house for sale in Grove Road, Houghton Regis, LU5 — £240,000 • 2 bed • 1 bath • 560 ft²


























































