Characterful semi with garden and driveway near schools and local amenities.
Four bedrooms suitable for family use or home working
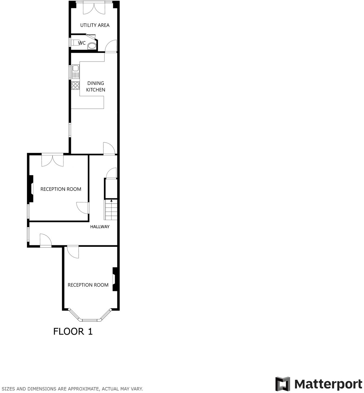
Set on the Evington Road/Evington Lane border, this roomy 1930s semi-detached family home offers genuine period charm with practical modern comforts. The house has two reception rooms, an open-plan fitted kitchen with dining area and utility, plus a handy ground-floor WC — layout that suits everyday family life and entertaining. Four bedrooms sit on the first floor alongside a family bathroom and a separate WC, providing flexible sleeping arrangements for children, guests or a home office.
Outside, the property benefits from a low-maintenance rear garden with lawn and patio seating, and a driveway to the front for off-street parking. Gas central heating and double glazing are already in place; the solid brick construction gives character and longevity. Local amenities, good schools (including several nearby primary and secondary options), mosques and community facilities are within easy reach, and city links make hospitals and the university accessible.
Buyers should note some practical considerations: the house is a solid-brick 1930–49 build and likely lacks cavity wall insulation, so upgrading thermal efficiency could be needed. Flood risk is medium in the area, council tax is moderate, and the property is an average overall size — a good family home but with scope for energy-focused improvements and cosmetic updating in places. For families seeking a spacious, characterful home with strong community links, this property is a compelling option.
4 bedroom semi-detached house for sale in Evington Road, Evington, Leicester, LE2 — £450,000 • 4 bed • 1 bath • 1787 ft²
4 bedroom semi-detached house for sale in Evington Drive, Evington, Leicester, LE5 — £450,000 • 4 bed • 2 bath • 1475 ft²
4 bedroom semi-detached house for sale in Hollington Road, Evington, LE5 — £460,000 • 4 bed • 3 bath • 2088 ft²
3 bedroom semi-detached house for sale in Evington Parks Road, Evington, Leicester, LE2 — £330,000 • 3 bed • 1 bath • 1033 ft²
5 bedroom semi-detached house for sale in Evington Road, Leicester, LE2 — £400,000 • 5 bed • 3 bath • 1448 ft²
4 bedroom semi-detached house for sale in St. Phillips Road, Evington, Leicester, LE5 — £450,000 • 4 bed • 2 bath • 1682 ft²


































































































































