Wrap-around garden, garage and three reception rooms close to village amenities.
Two double bedrooms with built‑in master wardrobes
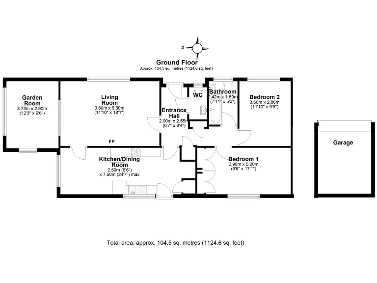
Three reception rooms: lounge, dining room and sun room
Wrap‑around landscaped garden with patio and fruit trees
Large fitted kitchen with double oven and extensive storage
Single garage plus driveway parking; pedestrian garden access
Built 1950s–60s; may require modernisation to fixtures and finishes
Tenure unknown; council tax band above average
Double glazing present; installation date not confirmed
Tucked in a quiet cul-de-sac in Byfleet Village, this detached, single-storey home is well-suited to downsizers or a small family seeking level living and mature outdoor space. The bungalow's layout delivers flexibility: three reception rooms create separate living, dining and sunroom areas while the large fitted kitchen provides generous storage and work surfaces. The wrap‑around, landscaped garden and single garage add privacy and useful outdoor utility.
The property dates from the 1950s–60s and presents as a solid, characterful bungalow with double glazing and a gas boiler with radiator heating. While generally well cared for, the house reflects its era — some updating may be desired to modernise finishes and services. The loft is accessible and there are built‑in wardrobes in the master bedroom, enhancing everyday practicality.
Practical points to note: tenure is unknown and council tax is above average. The plot is a genuine strength with established borders and an easily maintained patio area, but internal room sizes are average for the type and there is a single garage and drive parking only. The location benefits from good transport links, local shops and several well‑rated schools nearby, making it a convenient, quiet base within a very affluent area.
2 bedroom bungalow for sale in Sanway Road, Byfleet, West Byfleet, Surrey, KT14 — £529,000 • 2 bed • 1 bath • 782 ft²
3 bedroom bungalow for sale in Elveden Place, Elveden Close, Woking, Surrey, GU22 — £615,000 • 3 bed • 2 bath • 883 ft²
3 bedroom detached bungalow for sale in Mowbray Avenue, Byfleet, West Byfleet, KT14 — £725,000 • 3 bed • 2 bath • 1048 ft²
2 bedroom bungalow for sale in Elm Tree Close, Byfleet, KT14 — £650,000 • 2 bed • 2 bath • 1028 ft²
2 bedroom bungalow for sale in Selbourne Avenue, New Haw, Surrey, KT15 — £500,000 • 2 bed • 1 bath • 724 ft²
2 bedroom bungalow for sale in Sanway Road, Byfleet, West Byfleet, Surrey, KT14 — £544,500 • 2 bed • 1 bath • 743 ft²


































































