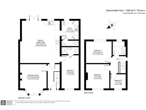
Spacious, newly renovated four-bedroom home with south-facing garden and flexible ground-floor suite..
South-facing level rear garden with direct access from kitchen/family room
Ground-floor en suite bedroom — good for guests or multi-generational use
Driveway parking for several vehicles; off-street, level frontage
Newly renovated interiors, modern kitchen and family bathroom
Utility room and ground-floor cloakroom add practical convenience
Built 1967–1975; cavity walls assumed uninsulated — may raise heating costs
Council tax above average for the area
Local crime levels higher than nearby neighbourhoods
This newly refurbished four-bedroom semi-detached house balances contemporary living with practical family space. The light, open-plan kitchen/family room opens directly onto a sunny south-facing garden — ideal for everyday family life and weekend entertaining. A ground-floor en suite bedroom provides flexible accommodation for guests or multigenerational living.
Upstairs offers three well-proportioned bedrooms and a modern family bathroom, while a useful loft and sizable utility room support day-to-day storage and laundry needs. The front driveway laid with Cotswold chippings provides off-street parking for several vehicles, an asset for busy households.
Practical points to note: the property was constructed in the late 1960s–1970s and the cavity walls are assumed to lack insulation, which can affect heating bills despite double glazing and a modern boiler. Council tax is above average for the area and the neighbourhood records higher crime levels than surrounding localities, which prospective buyers should consider.
Location is a strength: roughly 3.6 miles from Gerrards Cross station with fast links to London, close to Slough and Heathrow, and surrounded by popular outdoor spaces such as Black Park and Langley Park. A mix of state and independent schools, including several rated Outstanding, make this a sensible family choice for commuters who want access to green space.
4 bedroom semi-detached house for sale in Tubwell Road, Stoke Poges, Buckinghamshire, SL2 — £750,000 • 4 bed • 2 bath • 1548 ft²
4 bedroom semi-detached house for sale in Farthing Green Lane, Stoke Poges, Buckinghamshire, SL2 — £800,000 • 4 bed • 2 bath • 2100 ft²
4 bedroom semi-detached house for sale in Penn Road, Datchet, Berkshire, SL3 — £600,000 • 4 bed • 2 bath • 1399 ft²
4 bedroom semi-detached house for sale in Plough Lane, Stoke Poges, Buckinghamshire, SL2 — £700,000 • 4 bed • 2 bath • 1383 ft²
4 bedroom detached house for sale in Wexham Street, Slough, Berkshire, SL3 — £950,000 • 4 bed • 3 bath • 1401 ft²
4 bedroom terraced house for sale in Vine Road, Stoke Poges, SL2 — £550,000 • 4 bed • 2 bath • 1189 ft²


















































































