PO16 7XX - 2 bedroom house for sale in Union Street, Fareham, PO16

View on Property Piper

2 bedroom house for sale in Union Street, Fareham, PO16

Summary - 7 UNION STREET FAREHAM PO16 7XX

2 bed 1 bath House

Charming Grade II listed two-bedroom house in Fareham town centre, chain-free.
Grade II listed town-centre house with historic timber-frame character
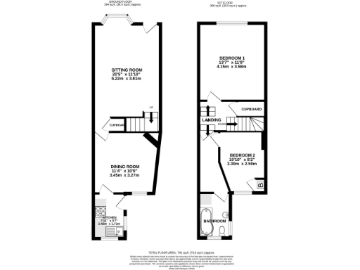
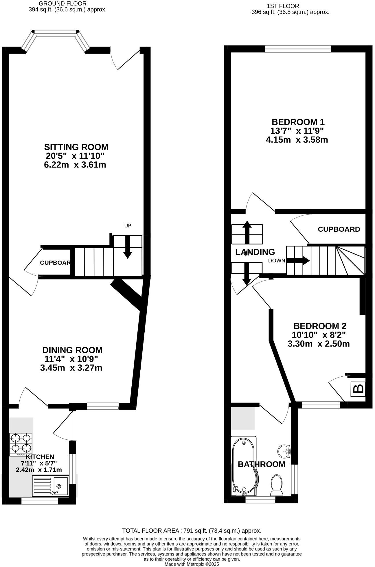
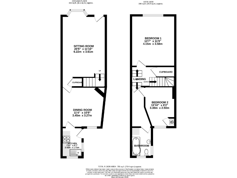
Set in the heart of Fareham’s High Street conservation area, this Grade II listed two-bedroom house combines historic charm with practical, modern touches. The property offers a sitting room, dining room and a recently fitted kitchen, plus an enclosed courtyard garden — a rare town-centre outdoor space. With no onward chain, it suits a buyer who wants quick completion and immediate occupation.

The interior retains character features such as exposed timber beams and sash windows, creating a cosy, cottage-like atmosphere. Rooms are generally small with standard or low ceiling heights, so the layout feels intimate rather than spacious. The house measures about 791 sqft and sits on a small plot close to shops, cafés and public transport.

Buyers should note the listed status: repairs, alterations and some modernisations will be subject to consents and could limit options or add cost. EPC currently TBC. The property is freehold with affordable council tax (Band B) and good digital connectivity, making it practical for everyday living in a town-centre setting.

This home will suit first-time buyers or those downsizing who value character, location and low-maintenance outdoor space, and who are comfortable living with the constraints of a listed building.

Property Details

Image Descriptions

Rooms

Textual Property Features

Target Audience

AI Tags

Detected Visual Features

Nearby Schools

Nearest Bars And Restaurants

,,,,}

Nearest General Shops

,,}

Nearest Grocery shops

,,}

Nearest Supermarkets

,,}

Nearest Religious buildings

,,}

Nearest Medical buildings

,,,}

Nearest Airports

}

Nearest Leisure Facilities

,,,,}

Nearest Tourist attractions

,,}

Nearest Train stations

,,,,}

Nearest Bus stations and stops

,,,,}

Nearest Hotels

,,}

Tags

Local Market Stats

AirBnB Data

Similar Properties

Meta

High Res Images

Compatible Images

Low res Images

Thumbnails

Raw Images

High Res Floorplan Images

Compatible Floorplan Images

Low res Floorplan Images

FloorplanImages Thumbnail

Raw Floorplan Images