**Standout Features:**
- Brand new semi-detached house in exclusive development of just 8 homes
- Spacious open-plan sitting/dining room with sliding doors to landscaped garden
- Modern kitchen with integral appliances and high-quality finishes
- Two bedrooms plus additional study/bedroom 3
- Single garage and driveway included
- High energy efficiency with heating and hot water solutions
- Convenient location near Debenham village amenities
- Well-regarded schools and transport links to Ipswich and beyond
**Concise Property Summary:**
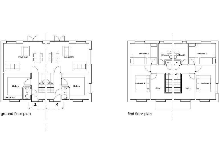
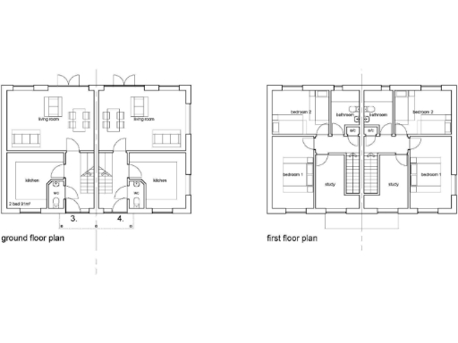
Discover this stunning brand new semi-detached house located within the exclusive Otter’s Holt development in the charming village of Debenham, Suffolk. Boasting a generous layout, the property features an inviting entrance hall that leads into a spacious sitting/dining room, perfect for entertaining and family gatherings, with sliding doors that seamlessly connect to a beautifully landscaped garden. A modern kitchen outfitted with high-quality integral appliances, two comfortable bedrooms, a versatile study/bedroom 3, and a contemporary bathroom complete the stylish interior.
Ideal for families or first-time buyers seeking a comfortable lifestyle, this home also includes a single garage and private driveway. With energy-efficient systems such as photovoltaic panels and high-quality insulation, you'll not only enjoy lower utility bills but also environmentally friendly living. The appealing location offers a wealth of local amenities, including shops, leisure facilities, and well-regarded schools, with excellent transport links ensuring easy access to Ipswich and the picturesque Suffolk coastline.
Please note, this property is in superb condition with a 10-year structural warranty, making it a fantastic investment opportunity. Act quickly, as homes in this desirable development are expected to sell fast—don’t miss your chance to secure a new beginning in Debenham!
3 bedroom semi-detached house for sale in Debenham, Suffolk, IP14 — £349,950 • 3 bed • 1 bath • 980 ft²
2 bedroom semi-detached house for sale in Debenham, Suffolk, IP14 — £319,950 • 2 bed • 1 bath • 1959 ft²
4 bedroom detached house for sale in Debenham, Suffolk, IP14 — £725,000 • 4 bed • 2 bath • 1592 ft²
4 bedroom detached house for sale in Debenham, Suffolk, IP14 — £725,000 • 4 bed • 2 bath • 1506 ft²
3 bedroom semi-detached house for sale in Otters Holt, Debenham, Stowmarket, Suffolk, IP14 — £319,950 • 3 bed • 1 bath • 932 ft²
3 bedroom semi-detached house for sale in Debenham, Stowmarket, Suffolk, IP14 — £325,000 • 3 bed • 2 bath • 1129 ft²


































