Low-maintenance two-bed apartment near shops and community facilities for comfortable independent living.
- Two bedrooms with principal walk-in wardrobe
- 16' living room and fitted kitchen with integrated appliances
- Communal Owners' Lounge, guest suite and organised activities
- Communal gardens and landscaping maintained by service charge
- Off-street free parking and secure entry system
- Leasehold retirement apartment; on-site Lodge Manager
- Electric panel heating throughout; easy-to-use thermostats
- Slow broadband locally and area crime above average
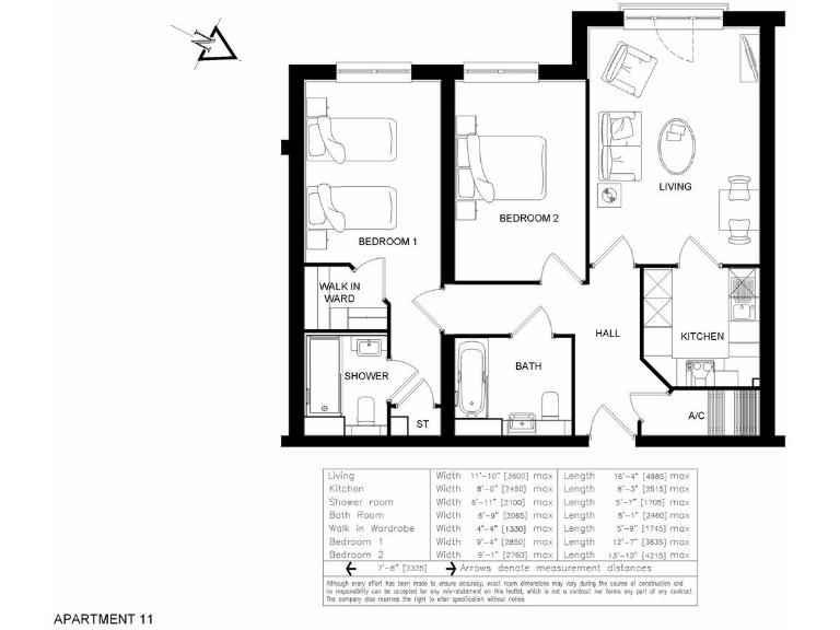
This two-bedroom retirement apartment sits within a modern development close to Westwood Cross shopping and local amenities. At about 598 sq ft the layout is compact and practical, with a 16' living room, fitted kitchen with integrated appliances and a principal bedroom with a walk-in wardrobe.
The development is designed for independent older residents and includes communal gardens, an Owners' Lounge with a coffee bar, organised activities and a guest suite for visitors. Communal upkeep, many maintenance tasks and building security features are covered by the service charge, helping to simplify day-to-day living.
Practical points to note: the property is leasehold, uses electric panel heating, and broadband speeds in the area are reported as slow. The local crime rate is above average, which you should consider alongside the building’s secure entry and on-site manager when assessing safety.
Overall this is a low-maintenance, social retirement option ideal for buyers looking to downsize into a purpose-built community close to shops and transport. The compact footprint and electric heating suit those wanting simplicity over expansive space; buyers seeking faster internet or ground-floor private gardens should consider whether this matches their priorities.
1 bedroom apartment for sale in Westwood Cross, Margate, CT9 — £299,950 • 1 bed • 1 bath • 455 ft²
2 bedroom apartment for sale in Invicta Lodge, Nash Road, Westwood Cross, Margate, CT9 — £442,950 • 2 bed • 2 bath • 817 ft²
House for sale in Invicta Lodge, Nash Road, Westwood Cross, Margate, CT9 — £299,950 • 1 bed • 1 bath • 632 ft²
1 bedroom retirement property for sale in 1 Bed Apartment, Invicta Lodge, Margate, CT9 — £238,665 • 1 bed • 1 bath
2 bedroom apartment for sale in Nash Road, Westwood Cross, Margate, CT9 — £442,950 • 2 bed • 1 bath • 620 ft²
2 bedroom apartment for sale in Invicta Lodge, Nash Road, Margate, CT9 — £400,000 • 2 bed • 2 bath • 914 ft²














































