Bright one-bedroom with bay window and quick city links.
Top-floor Victorian sandstone tenement with high ceilings and bay window
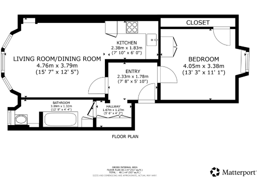
Set on the top level of a red sandstone tenement, this well‑kept one-bedroom flat combines period character with modern convenience. High ceilings and a bay‑windowed lounge create airy living space, while an open-plan kitchen with integrated appliances suits contemporary city living. Gas central heating and double glazing add practical comfort, and the communal hall and secure entry provide added peace of mind.
Located in a busy pocket of Kings Park/Mount Florida, the home is 0.3 miles from Mount Florida rail station and served by multiple bus routes, making it easy for commuters and students. The local high street offers a wide range of shops, cafes and services within minutes, and on-street parking is available nearby.
At around 441 sq ft the flat is compact but efficiently laid out; it will suit first-time buyers, city professionals or buy-to-let investors seeking a well-presented property with immediate rental potential. EPC rating C and a low council tax band help running costs. Be aware the surrounding area scores as very deprived, which may affect long-term value growth and buyer perception.
Overall this is a tidy, characterful apartment that needs little cosmetic work and offers quick access to public transport and local amenities. Buyers seeking larger rooms or a quieter, more affluent neighbourhood should note the size and area profile before viewing.
1 bedroom apartment for sale in Cumming Drive, Mount Florida, Glasgow, G42 — £120,000 • 1 bed • 1 bath • 455 ft²
1 bedroom flat for sale in Kings Park Road, Glasgow, Glasgow City, G44 — £135,000 • 1 bed • 1 bath • 578 ft²
1 bedroom flat for sale in 1/2, 146 King’s Park Road, King’s Park, G44 4SX, G44 — £149,000 • 1 bed • 1 bath • 775 ft²
1 bedroom flat for sale in 126 Cumming Drive, Flat 2/2, Mount Florida, Glasgow, G42 9BW, G42 — £149,000 • 1 bed • 1 bath • 820 ft²
1 bedroom flat for sale in 1057 Cathcart Road, Flat 1/1, Cathcart, Glasgow, G42 9AF, G42 — £119,000 • 1 bed • 1 bath • 602 ft²
2 bedroom flat for sale in 17 Ruel Street, Flat 1/2, Cathcart, Glasgow, G44 4AR, G44 — £200,000 • 2 bed • 1 bath • 689 ft²






















































