Well-presented 3-bed home with modern kitchen, ready to move into.
Larger-than-average end terrace providing generous internal space
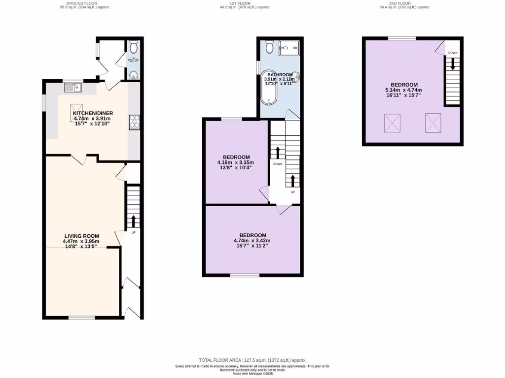
This larger-than-average end terrace on Regent Street is a well-presented family home ready for immediate occupation. A generous living room and a modern open-plan kitchen/diner create comfortable daily living and easy entertaining space. The kitchen’s integrated appliances, breakfast bar and bright skylight add contemporary convenience.
Accommodation spans three double bedrooms across two floors, with useful built-in storage and a practical ground-floor WC plus a rear porch leading to a small rear yard. Recent renovation work means minimal short-term maintenance is expected, so buyers can move in and personalise rather than overhaul.
Positioned within easy walking distance of shops, bars and eateries, the house suits families who want town-fringe convenience and good local primary schools. Practical points to note: the plot is small with a modest rear yard, there is only one bathroom, and local crime levels are above average — factors to weigh against the property’s size and freshly refurbished condition.
Overall, this freehold property offers a roomy, contemporary home for a family seeking space and convenience in Longridge, with straightforward scope to add further value over time if desired.
3 bedroom end of terrace house for sale in Kestor Lane, Longridge, PR3 — £189,950 • 3 bed • 1 bath • 1006 ft²
2 bedroom terraced house for sale in Severn Street, Longridge, Preston, PR3 — £144,950 • 2 bed • 1 bath • 743 ft²
3 bedroom terraced house for sale in Lee Street, Longridge, Preston, PR3 — £129,950 • 3 bed • 1 bath • 777 ft²
3 bedroom terraced house for sale in Whittingham Road, Longridge, Preston, PR3 — £169,950 • 3 bed • 1 bath • 836 ft²
3 bedroom terraced house for sale in Lee Street, Longridge, Preston, PR3 — £129,950 • 3 bed • 1 bath • 666 ft²
2 bedroom end of terrace house for sale in Parlick Avenue, Longridge, Preston, PR3 — £179,950 • 2 bed • 1 bath • 754 ft²


















































































































