Chain-free three-floor home minutes from shops, station and schools.
- Chain-free Victorian mid-terrace, circa 1,046 sq ft
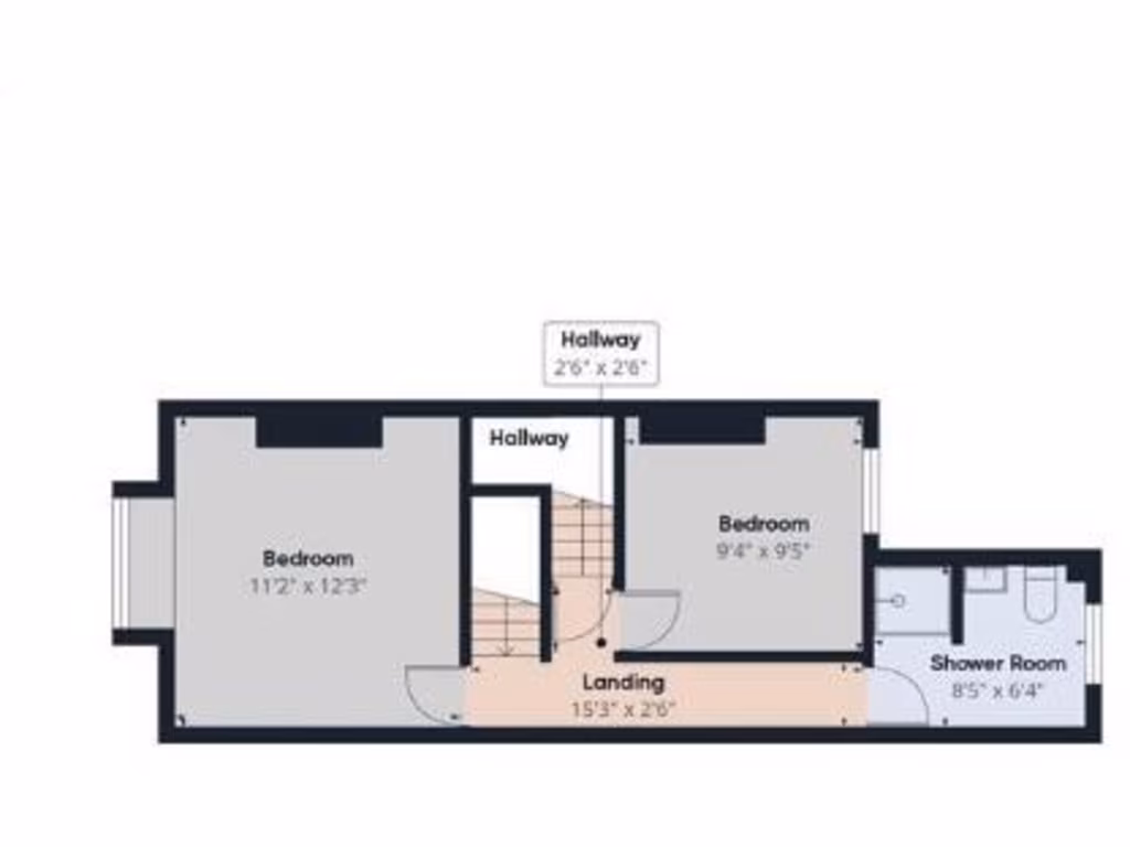
- Two bedrooms plus loft conversion used as third room
- Fully refurbished: full rewire, new plastering, radiators
- New fitted kitchen and modern shower room
- Small enclosed rear garden, low-maintenance
- On-street parking; resident permit available
- High local crime levels and high flood risk
- Solid brick walls (pre-1900); likely no cavity insulation
This chain-free Victorian mid-terrace has been fully refurbished to provide modern living across three floors. The property offers generous space (approximately 1,046 sq ft) with two main bedrooms plus a loft conversion currently used as an additional bedroom or study. Recent works include a full rewire, new plastering, new radiators, and a fitted kitchen and bathroom — it is largely move-in ready.
The house sits within walking distance of Loughborough town centre, train station, supermarkets and Regent Place Retail Park, making it convenient for everyday needs and commuting. A small, low-maintenance rear garden provides private outdoor space; on-street parking is available with resident permits from the local council.
Buyers should note material local and property considerations: the area records higher crime levels and the property is in a high flooding-risk zone. The mid-terrace was built before 1900 with solid brick walls that appear to have no cavity insulation — additional insulation or energy upgrades may be needed. These factors affect insurance and long-term running costs and should be investigated prior to purchase.
Overall this refurbished terrace suits first-time buyers or investors seeking a centrally located, ready-to-live-in home with scope for further improvement. Viewing is recommended for those wanting spacious, characterful accommodation with excellent local transport and shopping access.
3 bedroom terraced house for sale in Edward Street, Loughborough, LE11 1QF, LE11 — £225,000 • 3 bed • 1 bath • 1045 ft²
2 bedroom terraced house for sale in Edward Street, Loughborough, LE11 — £200,000 • 2 bed • 2 bath • 904 ft²
3 bedroom terraced house for sale in Bishop Street, Loughborough, LE11 — £170,000 • 3 bed • 1 bath • 760 ft²
2 bedroom terraced house for sale in Charles Street, Loughborough, LE11 — £185,000 • 2 bed • 1 bath • 846 ft²
3 bedroom terraced house for sale in Station Street, Loughborough, LE11 5ED, LE11 — £204,950 • 3 bed • 1 bath • 872 ft²
3 bedroom terraced house for sale in Herbert Street, Loughborough, LE11 — £225,000 • 3 bed • 1 bath • 915 ft²






























































