Spacious 3/4-bed family home with garden and two-car parking in Caterham on the Hill.
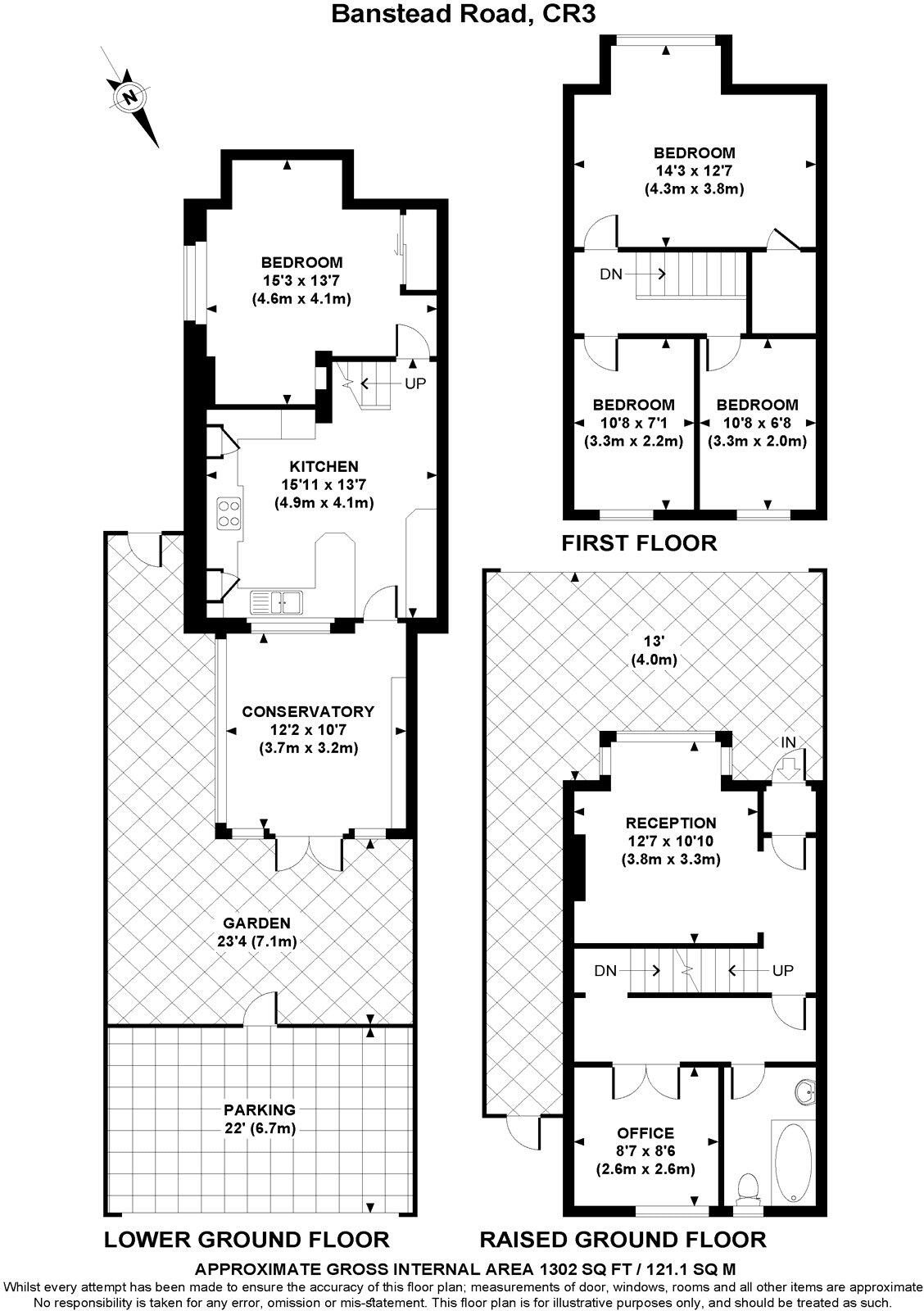
Deceptively spacious Victorian semi-detached, 1,302 sq ft over three floors
This deceptively spacious Victorian semi offers more than 1,300 sq ft of flexible living across three floors — an ideal family home in Caterham on the Hill. The principal reception is bright with a large bay window; a separate reception/home office and a generous lower-ground room provide adaptable space for a growing household or home working. The modern kitchen opens into a dual-aspect conservatory and onto a low-maintenance landscaped garden with decking and astro turf, and there is private off-street parking for two cars.
The first floor has three well-proportioned bedrooms, including a sizeable master with built-in storage, served by a contemporary family bathroom on the ground floor. Practical details include mains gas central heating, double glazing and a freehold title. The location balances local amenities and good schools with easy access to countryside and the M25, making daily life straightforward for commuters and families.
Notable practical points are presented plainly: the property currently has one bathroom for three bedrooms, an EPC rating of D, and the cavity walls are assumed to lack insulation (typical of its era). The lower-ground room, while large and versatile, may have reduced natural light compared with the upper floors. Buyers should also be aware that a buyer commission may be required. These are manageable considerations against the home’s size, layout and parking — especially for buyers seeking period character with modernised living spaces.
Overall, this Victorian semi will suit families or those needing flexible accommodation close to good schools and transport links. It offers immediate liveability with scope to personalise further, particularly around energy performance and internal redecoration where desired.
3 bedroom terraced house for sale in Homestead Road, Caterham, CR3 5RL, CR3 — £445,000 • 3 bed • 1 bath • 917 ft²
3 bedroom semi-detached house for sale in Croydon Road, Caterham, Surrey, CR3 — £450,000 • 3 bed • 1 bath • 1000 ft²
3 bedroom semi-detached house for sale in Milner Road, Caterham, Surrey, CR3 — £425,000 • 3 bed • 1 bath • 896 ft²
4 bedroom semi-detached house for sale in Newstead Rise, Caterham, Surrey, CR3 — £450,000 • 4 bed • 1 bath • 843 ft²
3 bedroom semi-detached house for sale in Auckland Road, Caterham, CR3 — £550,000 • 3 bed • 1 bath • 1125 ft²
4 bedroom detached house for sale in Banstead Road, Caterham, Surrey, CR3 — £800,000 • 4 bed • 2 bath • 2356 ft²






























































