0.32 acre freehold plot with consented build and potential for two plots, village location.
- Very large plot approx. 0.32 acres, freehold
- Full planning permission for 2/3-bed dorma bungalow (Ref: 25/00247/FUL)
- Potential to split into two plots (subject to consents)
- Existing bungalow derelict; demolition and clearance required
- No upward chain — vacant possession potential
- No mobile signal; very slow broadband on site
- Flood risk: none; local crime rate: very low
- Council tax band TBC; EPC exempt
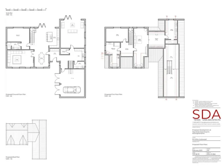
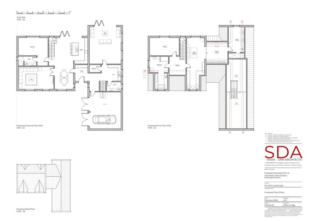
A rare development opportunity in East Drayton: a very large freehold plot of approximately 0.32 acres with full planning permission (Ref: 25/00247/FUL) for a two/three-bedroom detached dorma bungalow. The current single-storey bungalow is derelict and will require demolition as covered by the approved consent; the site is offered NO UPWARD CHAIN.
The planning consent allows immediate redevelopment and there is potential to split the land into two building plots (subject to separate consents). The consented layout includes open-plan living, sunroom, study/third bedroom, two en suite bedrooms plus dressing room, and generous outside space — attractive for a family home or small-scale developer looking to add value.
Practical considerations: the existing bungalow is in poor condition and not habitable; buyers should allow for demolition and site clearance costs. Mobile signal is absent and broadband speeds are very slow, which may affect short-term occupation until services improve. Council tax band is to be confirmed and the property is EPC exempt.
Located in a well-regarded rural village with very low crime, close to a village pub and fitness centre, and with easy road access to Retford for wider amenities and rail links. Nearby primary and secondary schools are rated Good. Viewings are recommended to assess the site and its development potential; splitting the plot will require planning approval if pursued.
Land for sale in Welham, Retford, DN22 — £250,000 • 1 bed • 1 bath • 2734 ft²
Land for sale in Willingham Road, Knaith Park, Gainsborough, DN21 — £89,950 • 1 bed • 1 bath
Plot for sale in Brotts Road, Normanton on Trent, Newark, NG23 — £195,000 • 1 bed • 1 bath • 1800 ft²
Plot for sale in Brotts Road, Normanton on Trent, Newark, NG23 — £170,000 • 1 bed • 1 bath • 1635 ft²
Land for sale in Ollerton Farmhouse, Old Rufford Road, Ollerton, NG22 — £300,000 • 1 bed • 1 bath
Land for sale in Lea Road, Gainsborough, Lincolnshire, DN21 — £82,500 • 1 bed • 1 bath • 639 ft²


















