**Standout Features:**
- Bright ground floor apartment with modern open-plan living/kitchen area
- One double bedroom with fitted wardrobe and spacious bathroom
- Private south-west facing garden plus access to expansive communal gardens
- Allocated parking space along with visitor parking available
- Conveniently located close to the River Thames, Teddington High Street, and station
- Share of Freehold, ensuring ownership flexibility
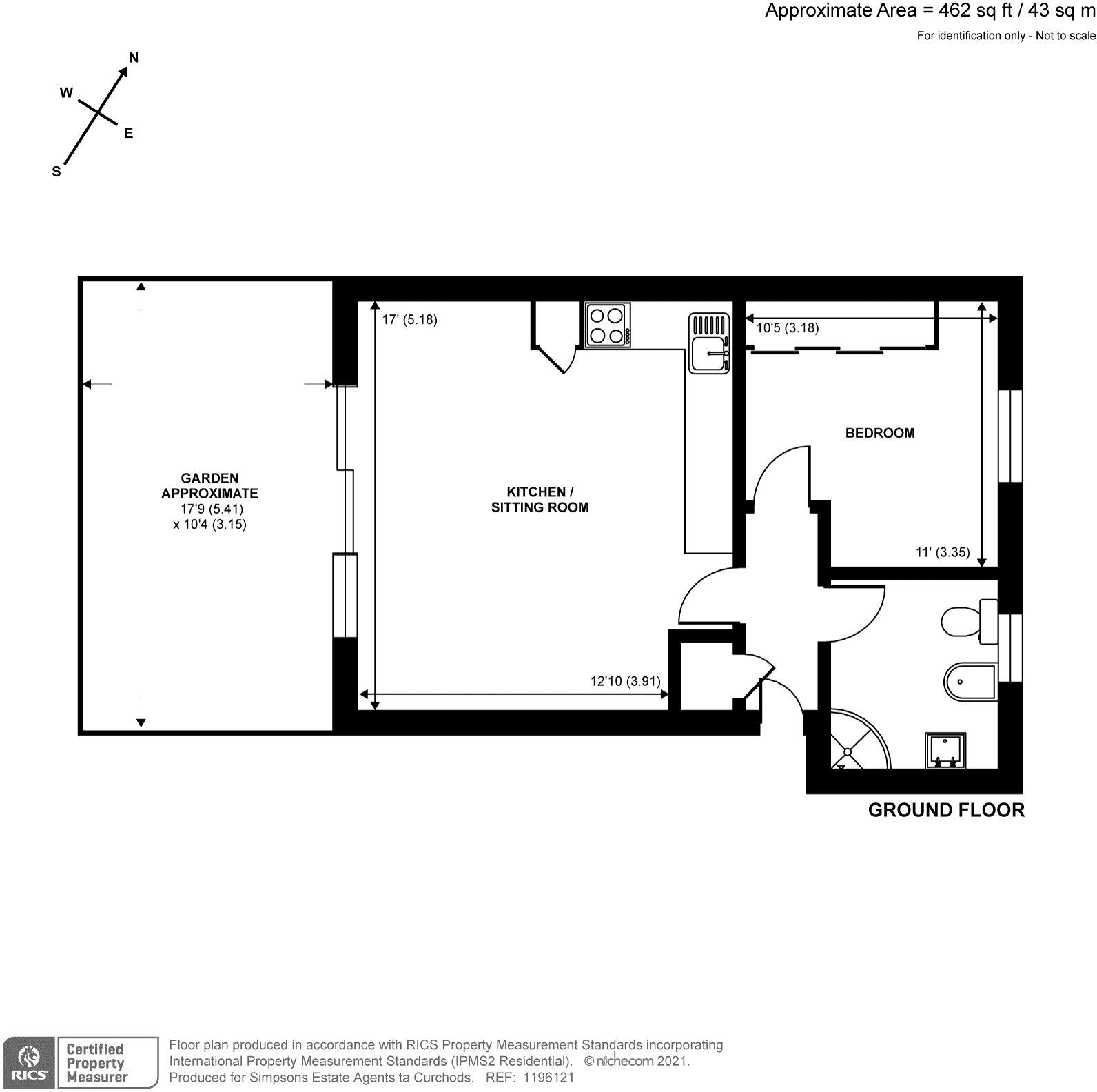
- Average-sized living space totaling 462 square feet
**Summary:**
This charming ground floor apartment offers a harmonious blend of comfort and convenience, making it an ideal choice for singles or couples. The bright open-plan living room and kitchen are designed for modern living, with sliding patio doors that provide direct access to a private south-west facing garden, perfect for outdoor relaxation or small gatherings. The double bedroom is well proportioned, featuring a fitted wardrobe, while the contemporary bathroom adds a touch of luxury.
Strategically located near the River Thames and Teddington High Street, this property ensures easy access to eateries, shops, and public transport, enhancing its appeal for both homeowners and potential investors. Enjoy the benefits of a private parking space along with a secure environment thanks to the communal entrance hall and intercom system. Plus, with a share of the freehold, future modifications and renovations are at your fingertips. With maintenance costs being manageable, this apartment presents an exciting opportunity that won’t stay on the market for long—don’t miss out on calling this delightful space your new home.
1 bedroom flat for sale in Cherrywood Court, Cambridge Road, Teddington, TW11 — £399,950 • 1 bed • 1 bath • 488 ft²
2 bedroom flat for sale in Twickenham Road, Teddington, TW11 — £515,000 • 2 bed • 2 bath • 751 ft²
Studio apartment for sale in Rivermead Close, Middlesex, TW11 — £274,950 • 1 bed • 1 bath
2 bedroom apartment for sale in Twickenham Road, Teddington, TW11 — £525,000 • 2 bed • 2 bath • 721 ft²
2 bedroom apartment for sale in Cloister Close, Teddington, TW11 — £375,000 • 2 bed • 1 bath • 621 ft²
1 bedroom apartment for sale in Rivermead Close, Teddington, Middlesex, TW11 — £299,950 • 1 bed • 1 bath • 359 ft²














































