Spacious renovated country estate with expansive private grounds for family living.
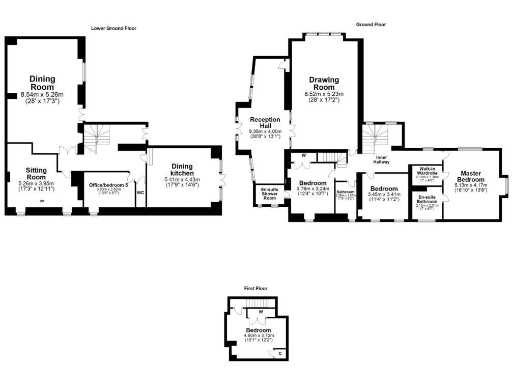
Large stone country house, c.3455 sq ft, five bedrooms
About 1.5 acres of mature gardens with former stable block
Handcrafted dining kitchen with granite worktops and island
Double garage, sweeping driveway and high privacy
Newly renovated; retains many original period features
Energy rating E; council tax noted as quite expensive
Fast broadband but average mobile signal in area
Rural location; ageing neighbourhood and area deprivation noted
Set within about 1.5 acres of mature grounds, The Old Mill House is a substantial stone family home blending period character with comprehensive recent renovation. The house offers flexible living across multiple levels — large reception rooms, a handcrafted kitchen with granite worktops and island, five bedrooms including a master with walk-in wardrobes and en-suite, and a lower-level sitting room with a wood-burning stove. Detached double garage and sweeping driveway provide secure parking and strong kerb appeal.
The plot is a major asset: extensive lawns, mature trees, a former stable block, a circular water fountain and the original mill race running through the grounds. The setting is private and rural yet within reasonable driving distance of A77 links to Glasgow, Prestwick Airport and nearby towns with rail connections — good for owners who need countryside tranquillity with occasional travel.
Practical strengths include recent comprehensive upgrading and modernisation, freehold tenure, fast broadband and no recorded flooding risk. Energy performance is modest (E), and council tax is described as quite expensive — factors to budget for. Mobile signal is average and the area classification indicates an ageing rural neighbourhood; this property best suits buyers prioritising space, privacy and character over immediate access to urban amenities.
Overall this is a rare, newly renovated country house for families or owners seeking a large private estate with strong renovation quality intact, but ongoing running costs and rural location should be considered.
3 bedroom detached house for sale in Mill Of Trabboch, Coalhall, Ayr, East Ayrshire, KA6 — £450,000 • 3 bed • 2 bath • 2318 ft²
4 bedroom detached villa for sale in Millview Cottage, 1 Dunlop Road, Barrmill, Beith, KA15 1HN, KA15 — £395,000 • 4 bed • 2 bath • 2626 ft²
4 bedroom detached house for sale in High Stane House, Kilbirnie, KA25 7LE, KA25 — £449,000 • 4 bed • 2 bath • 2314 ft²
4 bedroom detached house for sale in Stewarton Road, Newton Mearns, G77 — £600,000 • 4 bed • 2 bath • 2702 ft²
4 bedroom character property for sale in The Coach House, Townend Estate, Symington, KA1 5QL, KA1 — £425,000 • 4 bed • 2 bath • 2325 ft²
5 bedroom house for sale in Easter Highgate House 1, Beith, North Ayrshire, KA15 — £425,000 • 5 bed • 3 bath • 2295 ft²


































































































































































































































